
|
Bedrooms
3
|
Bathrooms
4
|
Living Area
2,050 Sqft
|
Lot Size
1,132 Sqft
|
| Property Features | Property Features | |||
|---|---|---|---|---|
| MLS ID: | MFRG5097697 | Year Built: | 2005 | |
| Appliances: | Dishwasher, Disposal, Dryer, Electric Water Heater, Exhaust Fan, Microwave, Range, Refrigerator, Washer | Association Amenities: | Basketball Court, Clubhouse, Fence Restrictions, Gated, Maintenance, Park, Playground, Pool, Recreation Facilities, Security, Tennis Court(s) | |
| Association Fee Includes: | Guard - 24 Hour, Common Area Taxes, Pool, Maintenance Structure, Maintenance Grounds, Private Road, Recreational Facilities, Security | Community Features: | Association Recreation - Owned, Clubhouse, Deed Restrictions, Fitness Center, Gated Community - Guard, Park, Playground, Pool, Sidewalks, Tennis Court(s), Street Lights | |
| Construction Materials: | Block, Stucco | Cooling: | Central Air | |
| Country: | US | County Or Parish: | Lake | |
| Direction Faces: | Southeast | Exterior Features: | Balcony, Lighting, Sidewalk | |
| Flooring: | Ceramic Tile, Luxury Vinyl | Foundation Details: | Slab | |
| Heating: | Central, Electric | Laundry Features: | Laundry Room | |
| Levels: | Two | Listing Agreement: | Exclusive Right To Sell | |
| Listing Terms: | Cash, Conventional, FHA, VA Loan | Occupant Type: | Owner | |
| Other Equipment: | Irrigation Equipment | Patio And Porch Features: | Covered, Deck, Front Porch, Patio, Porch, Rear Porch | |
| Pets Allowed: | Breed Restrictions, Size Limit | Property Condition: | Completed | |
| Property Sub Type: | Townhouse | Property Type: | Residential | |
| Road Surface Type: | Paved | Roof: | Shingle | |
| Sewer: | Public Sewer | Showing Requirements: | Supra Lock Box | |
| Special Listing Conditions: | None | Standard Status: | Active | |
| State Or Province: | FL | Utilities: | Cable Connected, Electricity Connected, Sewer Connected, Underground Utilities, Water Connected | |
| Water Source: | Public | Window Features: | Blinds, Drapes | |
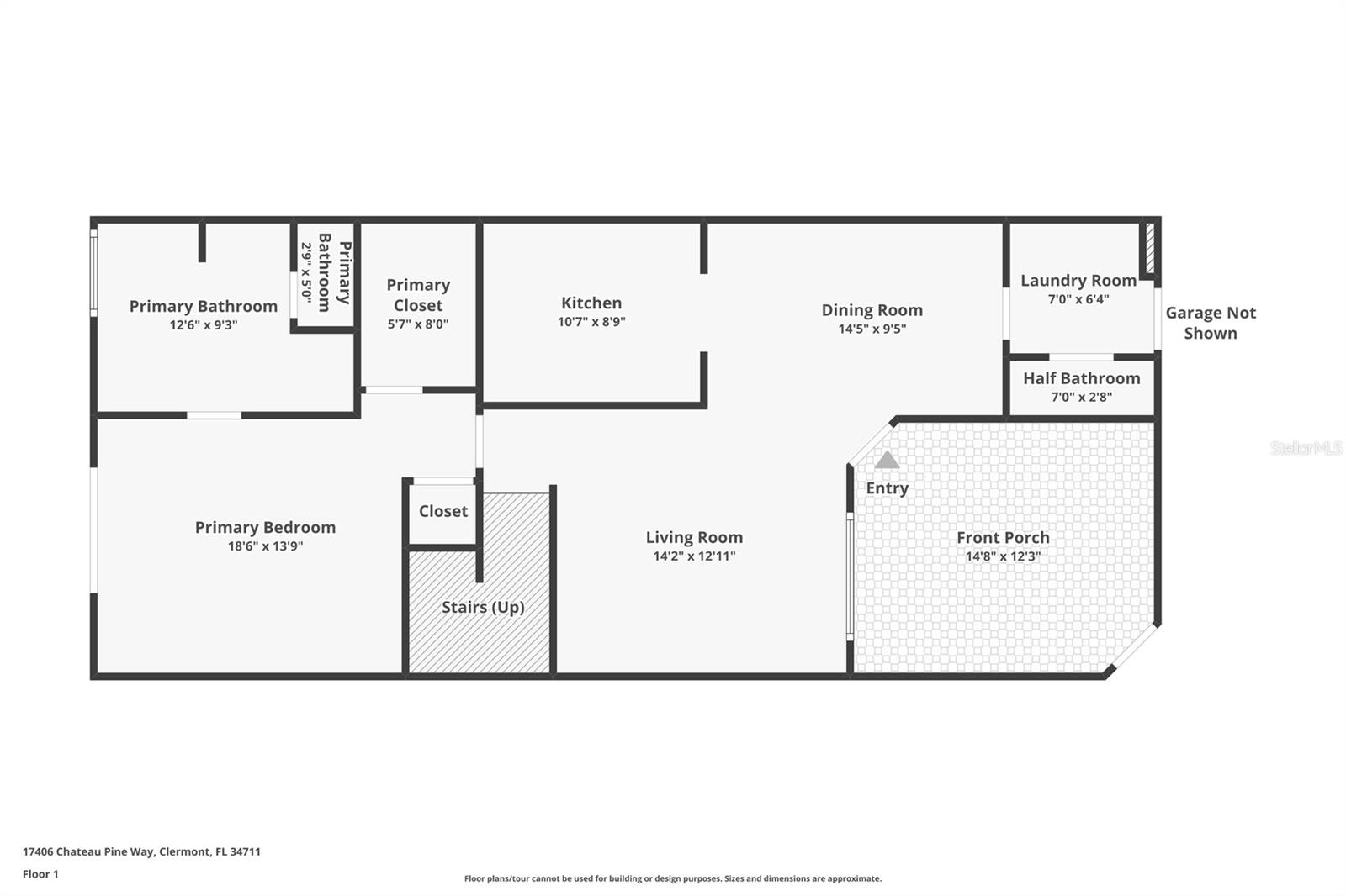
| Rooms | Rooms | |||
|---|---|---|---|---|
| Balcony/Porch/Lanai: | 15x12 ft | Living Room: | 14x13 ft | |
| Dining Room: | 14x10 ft | Kitchen: | 11x9 ft | |
| Primary Bedroom: | 19x14 ft | Primary Bathroom: | 13x9 ft | |
| Balcony/Porch/Lanai: | 6x10 ft | Family Room: | 13x10 ft | |
| Primary Bedroom 2: | 19x13 ft | Primary Bathroom: | 5x10 ft | |
| Bedroom 3: | 15x12 ft | Balcony/Porch/Lanai: | 10x4 ft | |
| Balcony/Porch/Lanai: | 6x8 ft | |||