
|
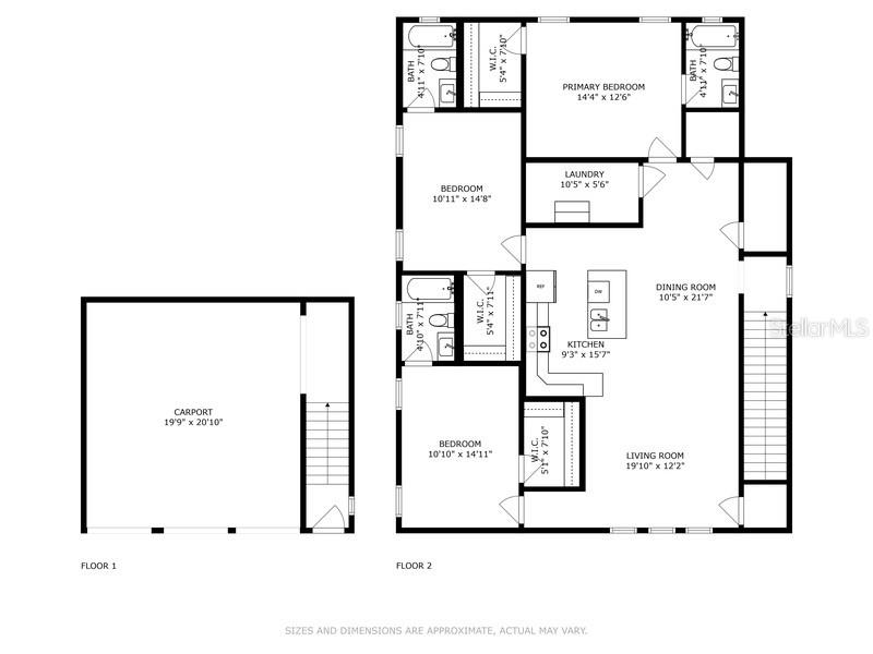
Bedrooms
3
|
Bathrooms
3
|
Living Area
1,400 Sqft
|
Lot Size
5,663 Sqft
|
| Property Features | Property Features | |||
|---|---|---|---|---|
| MLS ID: | MFRGC527761 | Year Built: | 2024 | |
| Appliances: | Dishwasher, Microwave, Range, Refrigerator | Cooling: | Central Air | |
| Country: | US | Exterior Features: | Sidewalk | |
| Flooring: | Luxury Vinyl | Furnished: | Unfurnished | |
| Heating: | Central | Laundry Features: | Laundry Room | |
| Lease Term: | Twelve Months | Levels: | One | |
| Listing Agreement: | Exclusive Right To Lease | Lot Features: | Corner Lot, City Limits, Paved | |
| Occupant Type: | Vacant | Owner Pays: | Grounds Care, Repairs | |
| Patio And Porch Features: | None | Pets Allowed: | No | |
| Property Condition: | Completed | Property Sub Type: | Half Duplex | |
| Property Type: | Residential Lease | Road Responsibility: | Public Maintained Road | |
| Road Surface Type: | Asphalt | Sewer: | Public Sewer | |
| Showing Requirements: | Supra Lock Box, Go Direct, Lock Box No Call, See Remarks | Standard Status: | Active | |
| State Or Province: | FL | Utilities: | Electricity Connected, Sewer Connected | |
| Water Source: | Public | Window Features: | Blinds, Double Pane Windows | |
| Rooms | Rooms | |||
|---|---|---|---|---|
| Bedroom 1: | 10x13 ft | Bedroom 2: | 10x13 ft | |
| Bedroom 3: | 10x13 ft | Kitchen: | 10x10 ft | |
| Living Room: | 11x14 ft | |||