
|
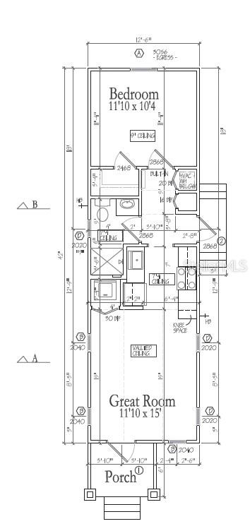
Bedrooms
1
|
Bathrooms
1
|
Living Area
525 Sqft
|
Lot Size
2,178 Sqft
|
| Property Features | Property Features | |||
|---|---|---|---|---|
| MLS ID: | MFRGC534767 | Year Built: | 2025 | |
| Appliances: | Dishwasher, Dryer, Electric Water Heater, Freezer, Microwave, Range, Refrigerator, Washer | Cooling: | Central Air | |
| Country: | US | County Or Parish: | Alachua | |
| Furnished: | Unfurnished | Heating: | Central, Electric | |
| Laundry Features: | Inside | Levels: | One | |
| Occupant Type: | Vacant | Owner Pays: | None | |
| Pets Allowed: | No | Property Condition: | Under Construction | |
| Property Sub Type: | Single Family Residence | Property Type: | Residential Lease | |
| Road Surface Type: | Paved | Showing Requirements: | 24 Hour Notice | |
| Standard Status: | Active | State Or Province: | FL | |
| Rooms | Rooms | |||
|---|---|---|---|---|
| Living Room: | 11x15 ft | Kitchen: | 6x7 ft | |
| Primary Bedroom: | 12x10 ft | |||