
|
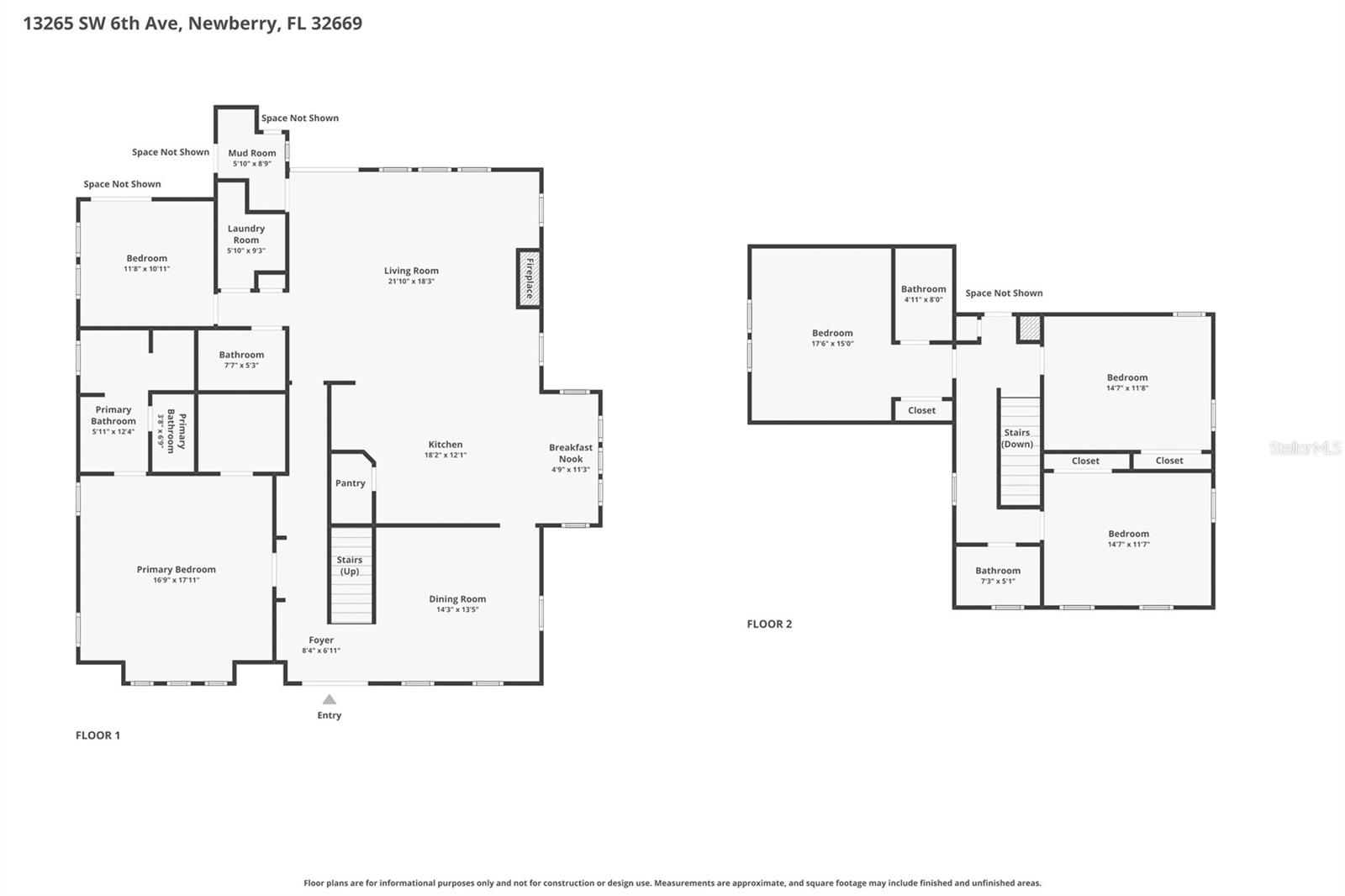
Bedrooms
5
|
Bathrooms
4
|
Living Area
2,848 Sqft
|
Lot Size
7,405 Sqft
|
| Property Features | Property Features | |||
|---|---|---|---|---|
| MLS ID: | MFRGC539310 | Year Built: | 2007 | |
| Appliances: | Dishwasher, Gas Water Heater, Microwave, Range, Range Hood, Refrigerator | Construction Materials: | HardiPlank Type | |
| Cooling: | Central Air | Country: | US | |
| County Or Parish: | Alachua | Direction Faces: | North | |
| Exterior Features: | Private Yard | Fireplace Features: | Family Room, Gas | |
| Flooring: | Carpet, Ceramic Tile, Wood | Foundation Details: | Slab, Stem Wall | |
| Furnished: | Unfurnished | Heating: | Central, Electric, Heat Pump | |
| Laundry Features: | Laundry Room | Levels: | Two | |
| Listing Agreement: | Exclusive Right To Sell | Occupant Type: | Vacant | |
| Other Equipment: | Private Yard | Pets Allowed: | Yes | |
| Property Sub Type: | Single Family Residence | Property Type: | Residential | |
| Road Surface Type: | Paved | Roof: | Shingle | |
| Sewer: | Public Sewer | Showing Requirements: | Supra Lock Box, ShowingTime | |
| Special Listing Conditions: | None | Standard Status: | Active | |
| State Or Province: | FL | Utilities: | BB/HS Internet Available, Cable Available, Electricity Connected, Natural Gas Connected, Sewer Connected, Water Connected | |
| Water Source: | Public | |||
| Rooms | Rooms | |||
|---|---|---|---|---|
| Primary Bedroom: | Living Room: | |||
| Kitchen: | ||||