
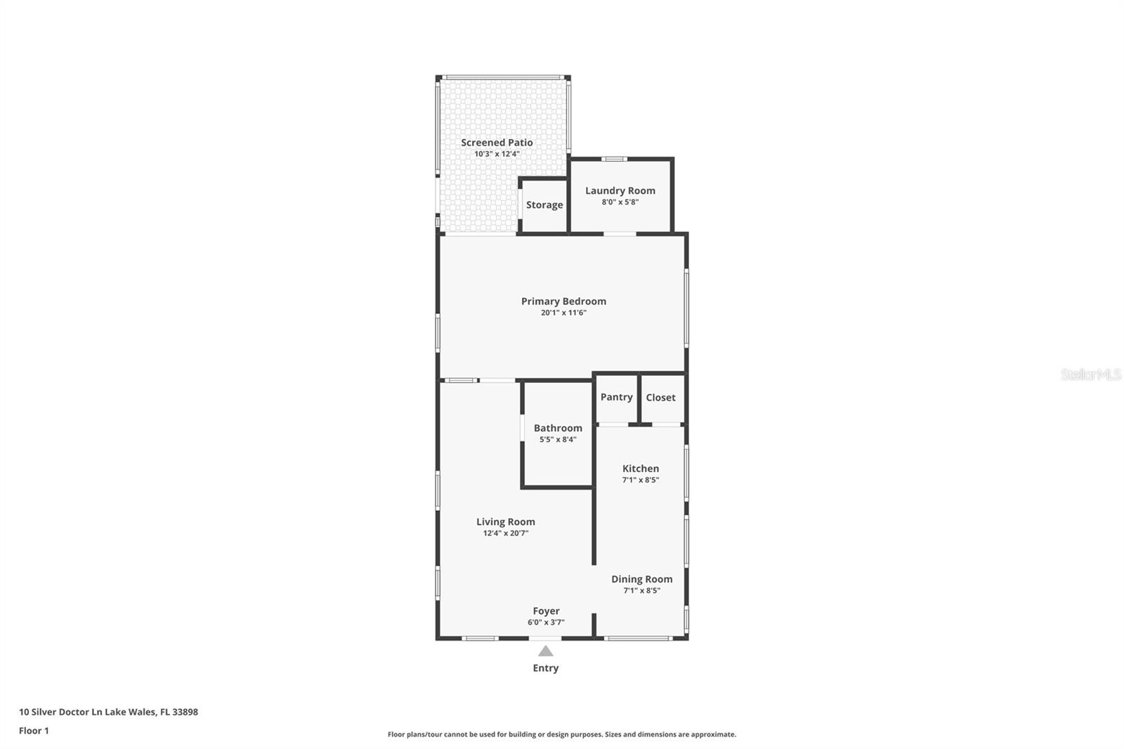
|
Bedrooms
1
|
Bathrooms
1
|
Living Area
551 Sqft
|
Lot Size
4,051 Sqft
|
| Property Features | Property Features | |||
|---|---|---|---|---|
| MLS ID: | MFRK4902742 | Year Built: | 1981 | |
| Appliances: | Dryer, Range, Refrigerator, Washer | Association Amenities: | Clubhouse, Fitness Center, Pickleball Court(s), Pool, Recreation Facilities, Sauna, Shuffleboard Court, Spa/Hot Tub, Tennis Court(s) | |
| Association Fee Includes: | Sewer, Trash, Water | Body Type: | Single Wide | |
| Community Features: | Deed Restrictions, Dog Park, Golf Carts OK | Construction Materials: | Vinyl Siding | |
| Cooling: | Wall/Window Unit(s) | Country: | US | |
| Direction Faces: | East | Disclosures: | HOA/PUD/Condo Disclosure | |
| Exterior Features: | Awning(s), Rain Gutters, Sliding Doors | Flooring: | Laminate | |
| Foundation Details: | Crawlspace, Slab | Furnished: | Partially | |
| Heating: | Wall Units / Window Unit | Laundry Features: | Laundry Room | |
| Levels: | Two | Listing Agreement: | Exclusive Right To Sell | |
| Listing Terms: | Cash | Occupant Type: | Vacant | |
| Other Structures: | Shed(s) | Patio And Porch Features: | Rear Porch, Screened | |
| Pets Allowed: | Yes | Property Sub Type: | Manufactured Home - Post 1977 | |
| Property Type: | Residential | Road Surface Type: | Asphalt | |
| Roof: | Metal | Security Features: | Gated Community | |
| Sewer: | Public Sewer | Showing Requirements: | Combination Lock Box, ShowingTime | |
| Special Listing Conditions: | None | Standard Status: | Active | |
| State Or Province: | FL | Utilities: | Electricity Connected, Sewer Connected, Water Connected | |
| Water Source: | Public | |||
| Rooms | Rooms | |||
|---|---|---|---|---|
| Living Room: | 12x20 ft | Dining Room: | 6x7 ft | |
| Kitchen: | 7x11 ft | Primary Bedroom: | 11x20 ft | |