
|
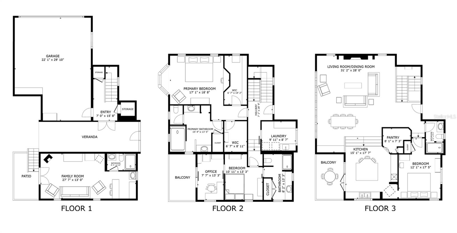
Bedrooms
4
|
Bathrooms
4
|
Living Area
3,042 Sqft
|
Lot Size
10,193 Sqft
|
| Property Features | Property Features | |||
|---|---|---|---|---|
| MLS ID: | MFRL4958501 | Year Built: | 2020 | |
| Appliances: | Bar Fridge, Convection Oven, Cooktop, Dishwasher, Disposal, Dryer, Exhaust Fan, Microwave, Other, Range Hood, Refrigerator, Washer | Architectural Style: | Key West | |
| Construction Materials: | Block, HardiPlank Type, Frame | Cooling: | Central Air | |
| Country: | US | County Or Parish: | Manatee | |
| Direction Faces: | East | Exterior Features: | Balcony, Fire Pit, Lighting, Outdoor Kitchen | |
| Fireplace Features: | Electric | Flooring: | Travertine, Wood | |
| Foundation Details: | Block, Slab, Stem Wall | Furnished: | Negotiable | |
| Heating: | Central | Laundry Features: | Laundry Room | |
| Levels: | Three Or More | Listing Agreement: | Exclusive Right To Sell | |
| Listing Terms: | Cash, Conventional | Lot Features: | In County, Paved | |
| Occupant Type: | Owner | Other Equipment: | Fire Pit, Irrigation Equipment | |
| Other Structures: | Cabana, Outdoor Kitchen | Parking Features: | Driveway, Garage Door Opener, Garage Faces Side, Golf Cart Parking | |
| Patio And Porch Features: | Covered, Deck, Patio, Porch, Rear Porch | Pets Allowed: | Yes | |
| Pool Features: | Auto Cleaner, In Ground, Salt Water | Possession: | Close Of Escrow | |
| Property Condition: | Completed | Property Sub Type: | Single Family Residence | |
| Property Type: | Residential | Road Surface Type: | Asphalt, Paved | |
| Roof: | Metal | Sewer: | Septic Tank | |
| Showing Requirements: | 24 Hour Notice, Appointment Only, Listing Agent Must Accompany, See Remarks, ShowingTime | Special Listing Conditions: | None | |
| Standard Status: | Active | State Or Province: | FL | |
| Utilities: | Cable Connected, Electricity Connected | Vegetation: | Trees/Landscaped | |
| View: | Water | Water Source: | Public | |
| Waterfront Features: | Canal - Saltwater | Window Features: | Display Window(s), Window Treatments | |
| Rooms | Rooms | |||
|---|---|---|---|---|
| Primary Bedroom: | 14x15 ft | Bathroom 1: | 5x9 ft | |
| Bedroom 1: | 12x13 ft | Living Room: | 22x15 ft | |
| Dining Room: | 11x15 ft | Kitchen: | 15x15 ft | |
| Primary Bathroom: | 7x13 ft | Bedroom 2: | 11x13 ft | |
| Office: | 7x13 ft | Studio: | 18x13 ft | |
| Kitchen: | 8x8 ft | Bathroom 2: | 5x8 ft | |