
|
Bedrooms
2
|
Bathrooms
1
|
Living Area
1,364 Sqft
|
Lot Size
12,998 Sqft
|
| Property Features | Property Features | |||
|---|---|---|---|---|
| MLS ID: | MFRL4959042 | Year Built: | 1976 | |
| Appliances: | Dishwasher, Microwave, Range, Refrigerator | Construction Materials: | Block | |
| Cooling: | Central Air, Mini-Split Unit(s) | Country: | US | |
| County Or Parish: | Polk | Direction Faces: | East | |
| Exterior Features: | Lighting, Other | Flooring: | Carpet, Luxury Vinyl | |
| Foundation Details: | Slab | Furnished: | Negotiable | |
| Heating: | Central | Laundry Features: | In Garage | |
| Levels: | One | Listing Agreement: | Exclusive Agency | |
| Listing Terms: | Cash, FHA, USDA Loan, VA Loan | Occupant Type: | Owner | |
| Property Sub Type: | Single Family Residence | Property Type: | Residential | |
| Road Surface Type: | Paved | Roof: | Shingle | |
| Sewer: | Septic Tank | Showing Requirements: | Lockbox, See Remarks, ShowingTime | |
| Special Listing Conditions: | None | Standard Status: | Active | |
| State Or Province: | FL | Utilities: | Cable Available, Electricity Connected, Sewer Connected, Water Connected | |
| Water Source: | Public | Waterfront Features: | Canal - Freshwater | |
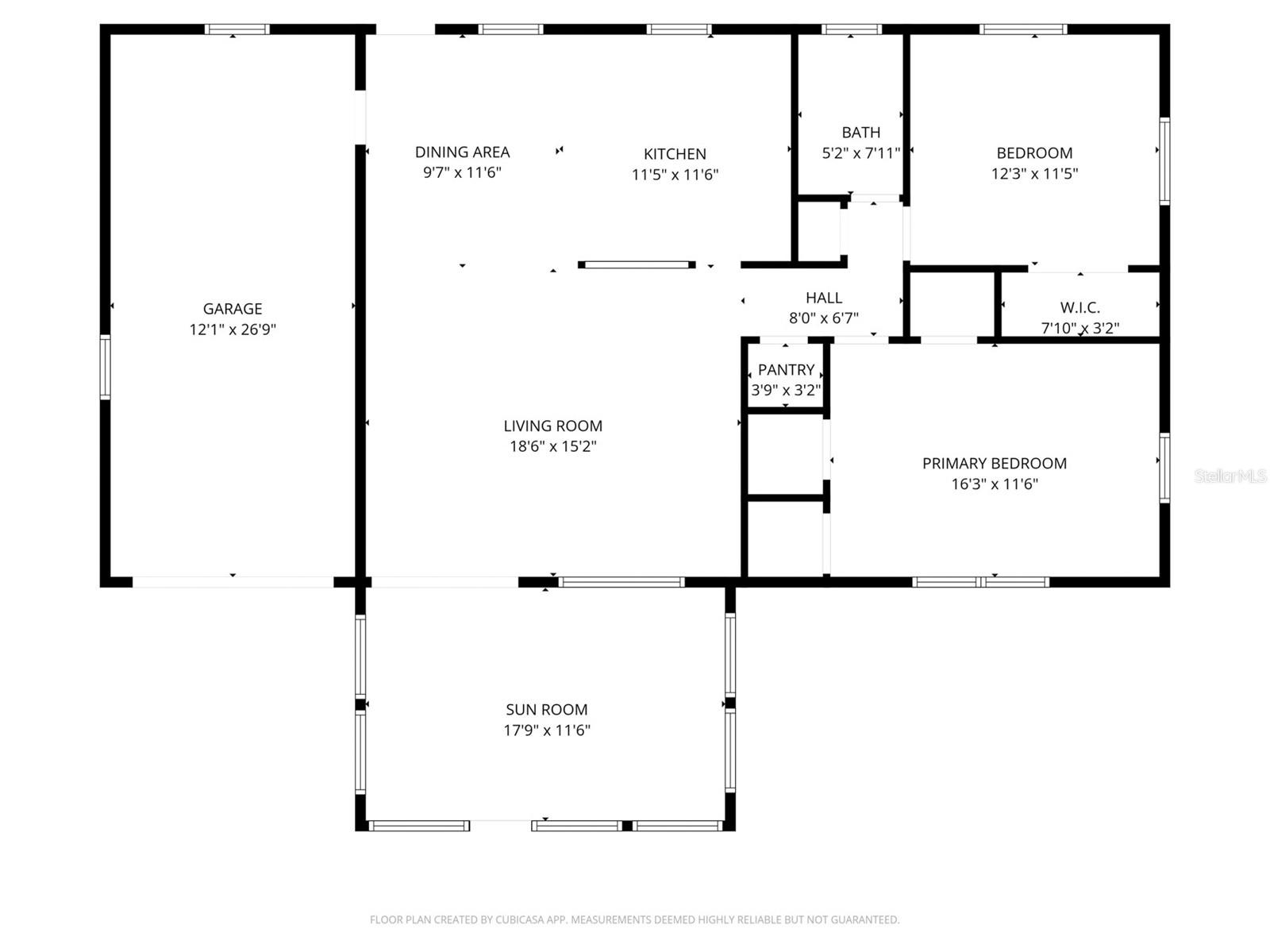
| Rooms | Rooms | |||
|---|---|---|---|---|
| Living Room: | 18.6x15.2 ft | Dining Room: | 9.7x11.6 ft | |
| Kitchen: | 11.5x11.6 ft | Bathroom 1: | 5.2x7.11 ft | |
| Bedroom 1: | 12.3x11.5 ft | Primary Bedroom: | 16.3x11.6 ft | |