
|
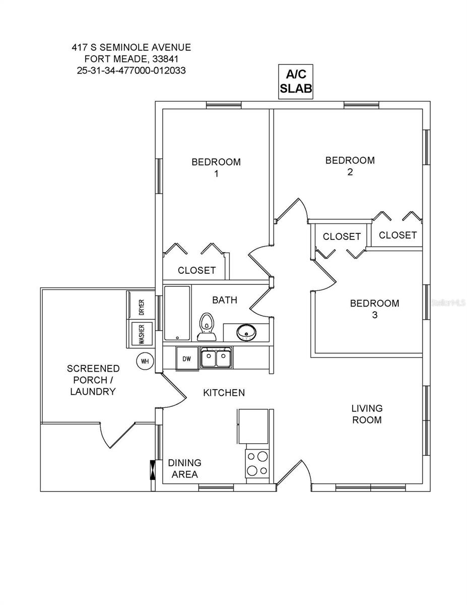
Bedrooms
3
|
Bathrooms
1
|
Living Area
816 Sqft
|
Lot Size
4,826 Sqft
|
| Property Features | Property Features | |||
|---|---|---|---|---|
| MLS ID: | MFRL4960908 | Year Built: | 1962 | |
| Appliances: | Dishwasher, Microwave, Range, Refrigerator, Tankless Water Heater | Construction Materials: | Block | |
| Cooling: | Central Air | Country: | US | |
| County Or Parish: | Polk | Direction Faces: | West | |
| Exterior Features: | Other | Flooring: | Carpet, Luxury Vinyl | |
| Foundation Details: | Slab | Furnished: | Unfurnished | |
| Heating: | Central | Laundry Features: | Outside | |
| Levels: | One | Listing Agreement: | Exclusive Right To Sell | |
| Listing Terms: | Cash, Conventional, USDA Loan, VA Loan | Occupant Type: | Vacant | |
| Patio And Porch Features: | Covered, Porch, Screened, Side Porch | Possession: | Close Of Escrow | |
| Property Sub Type: | Single Family Residence | Property Type: | Residential | |
| Road Surface Type: | Asphalt | Roof: | Shingle | |
| Sewer: | Public Sewer | Showing Requirements: | Appointment Only, Combination Lock Box, See Remarks, ShowingTime | |
| Special Listing Conditions: | None | Standard Status: | Active | |
| State Or Province: | FL | Utilities: | Electricity Connected, Sewer Connected, Water Connected | |
| Vegetation: | Trees/Landscaped | Water Source: | Public | |
| Rooms | Rooms | |||
|---|---|---|---|---|
| Living Room: | Primary Bedroom: | |||
| Kitchen: | ||||