
|
Bedrooms
3
|
Bathrooms
2
|
Living Area
1,664 Sqft
|
Lot Size
14,402 Sqft
|
| Property Features | Property Features | |||
|---|---|---|---|---|
| MLS ID: | MFRN6135705 | Year Built: | 1984 | |
| Appliances: | Dishwasher, Dryer, Range, Refrigerator, Washer | Construction Materials: | Block, Stucco | |
| Cooling: | Central Air | Country: | US | |
| Direction Faces: | Northwest | Exterior Features: | Sidewalk | |
| Flooring: | Tile | Foundation Details: | Slab | |
| Furnished: | Negotiable | Heating: | Central | |
| Laundry Features: | Inside | Levels: | One | |
| Listing Agreement: | Exclusive Right To Sell | Listing Terms: | Cash, Conventional, FHA, VA Loan | |
| Occupant Type: | Vacant | Property Sub Type: | Single Family Residence | |
| Property Type: | Residential | Road Surface Type: | Asphalt, Paved | |
| Roof: | Shingle | Sewer: | Septic Tank | |
| Showing Requirements: | Call Listing Agent | Special Listing Conditions: | None | |
| Standard Status: | Active | State Or Province: | FL | |
| Utilities: | Cable Connected, Phone Available, Water Connected | Water Source: | Well | |
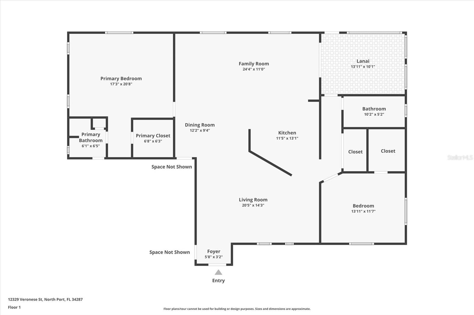
| Rooms | Rooms | |||
|---|---|---|---|---|
| Primary Bedroom: | 17.2x13.1 ft | Primary Bathroom: | 6.4x6.2 ft | |
| Bedroom 2: | 13.6x11.11 ft | Bathroom 2: | 9.1x10.5 ft | |
| Living Room: | 20.4x15.4 ft | Family Room: | 23.8x13.6 ft | |
| Balcony/Porch/Lanai: | 13.6x10.5 ft | Kitchen: | 12.2x6.2 ft | |