
|
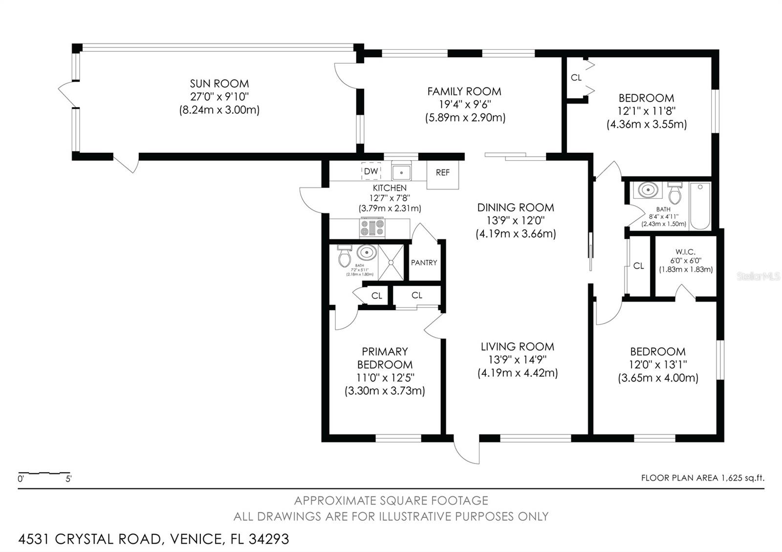
Bedrooms
3
|
Bathrooms
2
|
Living Area
1,414 Sqft
|
Lot Size
10,000 Sqft
|
| Property Features | Property Features | |||
|---|---|---|---|---|
| MLS ID: | MFRN6138106 | Year Built: | 1972 | |
| Appliances: | Dishwasher, Dryer, Electric Water Heater, Range, Range Hood, Refrigerator, Washer | Architectural Style: | Florida, Ranch | |
| Construction Materials: | Block | Cooling: | Central Air | |
| Country: | US | County Or Parish: | Sarasota | |
| Direction Faces: | Southwest | Exterior Features: | Hurricane Shutters, Sliding Doors, Storage | |
| Flooring: | Luxury Vinyl | Foundation Details: | Slab | |
| Heating: | Electric | Laundry Features: | In Garage | |
| Levels: | One | Listing Agreement: | Exclusive Right To Sell | |
| Listing Terms: | Cash, Conventional, FHA, VA Loan | Occupant Type: | Owner | |
| Other Structures: | Shed(s) | Parking Features: | Driveway, Garage Door Opener, Oversized | |
| Patio And Porch Features: | Enclosed, Front Porch, Rear Porch, Screened | Pets Allowed: | Yes | |
| Possession: | Negotiable | Property Sub Type: | Single Family Residence | |
| Property Type: | Residential | Road Surface Type: | Asphalt | |
| Roof: | Shingle | Sewer: | Septic Tank | |
| Showing Requirements: | Supra Lock Box, 24 Hour Notice, Appointment Only, See Remarks, ShowingTime | Special Listing Conditions: | None | |
| Standard Status: | Active | State Or Province: | FL | |
| Utilities: | BB/HS Internet Available | Vegetation: | Mature Landscaping | |
| Water Source: | Well | |||
| Rooms | Rooms | |||
|---|---|---|---|---|
| Primary Bedroom: | 12.5x11 ft | Bedroom 2: | 12x13 ft | |
| Bedroom 3: | 12x12 ft | Living Room: | 14x13 ft | |
| Dining Room: | 12x12 ft | Kitchen: | 12x8 ft | |
| Florida Room: | 19x9 ft | Balcony/Porch/Lanai: | 27x10 ft | |