
|
Bedrooms
2
|
Bathrooms
2
|
Living Area
1,277 Sqft
|
Lot Size
15,000 Sqft
|
| Property Features | Property Features | |||
|---|---|---|---|---|
| MLS ID: | MFRN6138135 | Year Built: | 1973 | |
| Appliances: | Dishwasher, Disposal, Dryer, Electric Water Heater, Exhaust Fan, Kitchen Reverse Osmosis System, Microwave, Range, Refrigerator | Architectural Style: | Coastal, Florida | |
| Construction Materials: | Block, Concrete, Stucco | Cooling: | Central Air, Attic Fan | |
| Country: | US | County Or Parish: | Sarasota | |
| Direction Faces: | Northeast | Exterior Features: | Garden, Private Mailbox, Sliding Doors, Sprinkler Metered | |
| Fencing: | Vinyl | Flooring: | Ceramic Tile | |
| Foundation Details: | Block, Slab | Heating: | Electric, Heat Pump | |
| Laundry Features: | Electric Dryer Hookup, Washer Hookup | Levels: | One | |
| Listing Agreement: | Exclusive Right To Sell | Listing Terms: | Cash, Conventional, FHA, USDA Loan, VA Loan | |
| Lot Features: | In County, Landscaped, Near Golf Course, Near Marina, Oversized Lot, Private | Occupant Type: | Owner | |
| Other Equipment: | Irrigation Equipment, Generator | Other Structures: | Shed(s) | |
| Parking Features: | Boat, Driveway, Garage Door Opener, Golf Cart Parking, Guest, Oversized | Patio And Porch Features: | Covered, Enclosed, Patio, Screened | |
| Pets Allowed: | Cats OK, Dogs OK | Pool Features: | Auto Cleaner, Heated, In Ground, Salt Water, Solar Heat, Tile | |
| Property Condition: | Completed | Property Sub Type: | Single Family Residence | |
| Property Type: | Residential | Road Responsibility: | Public Maintained Road | |
| Road Surface Type: | Asphalt, Paved | Roof: | Tile | |
| Sewer: | Septic Tank | Showing Requirements: | Supra Lock Box, Call Listing Agent, Go Direct, Lock Box Electronic | |
| Special Listing Conditions: | None | Standard Status: | Active | |
| State Or Province: | FL | Utilities: | Cable Available, Electricity Connected, Phone Available, Public, Sewer Connected, Water Connected | |
| Vegetation: | Fruit Trees, Mature Landscaping, Trees/Landscaped | View: | Golf Course, Pool, Trees/Woods, Water | |
| Water Source: | Public | Waterfront Features: | Freshwater Canal w/Lift to Saltwater Canal, Gulf/Ocean to Bay, Marina in Community | |
| Window Features: | Blinds | |||
| Rooms | Rooms | |||
|---|---|---|---|---|
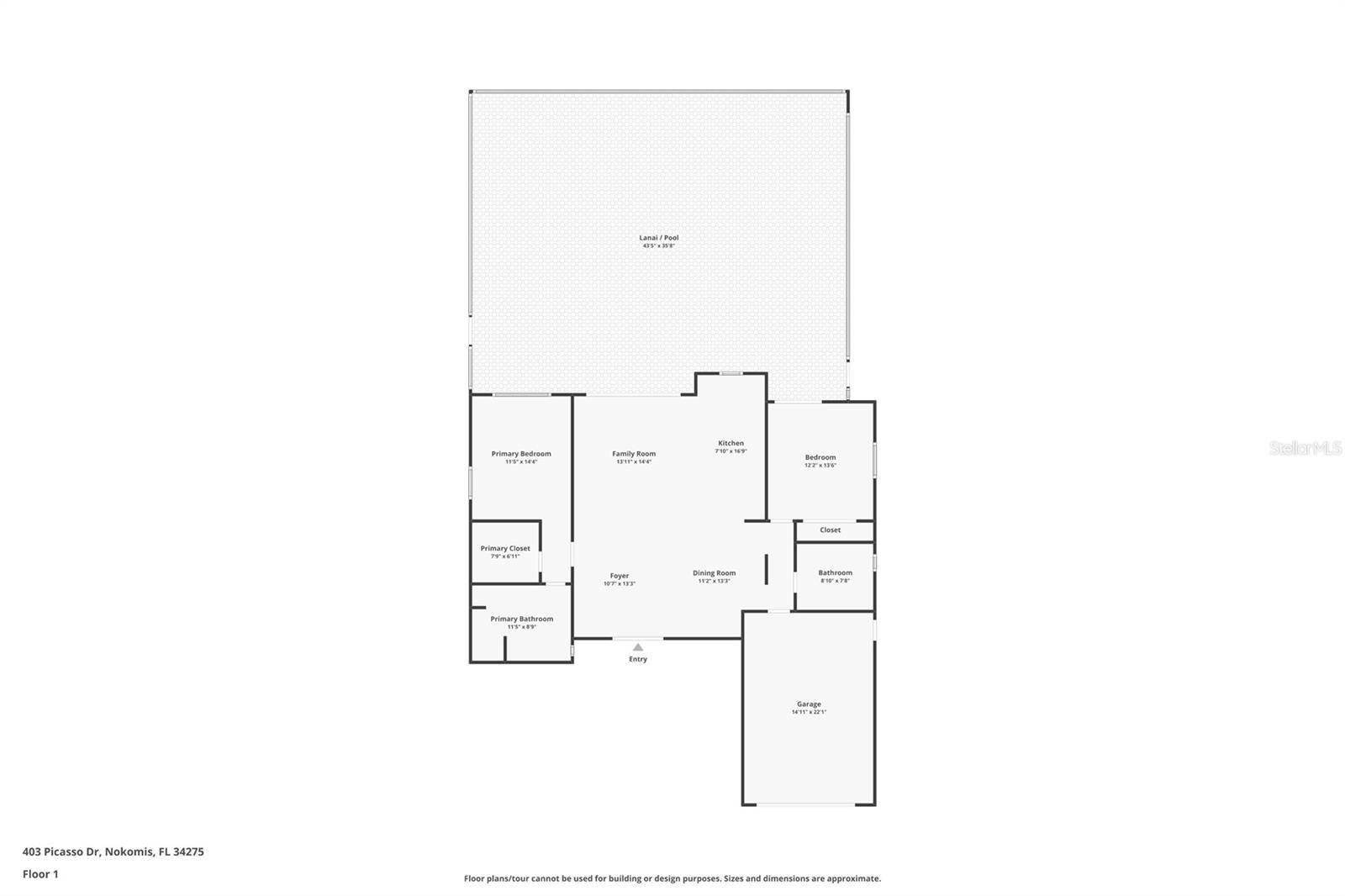
| Kitchen: | 18x8 ft | Great Room: | 15x11 ft | |
| Primary Bedroom: | 14x16 ft | Bedroom 2: | 12x12 ft | |
| Balcony/Porch/Lanai: | 14x28 ft | |||