
|
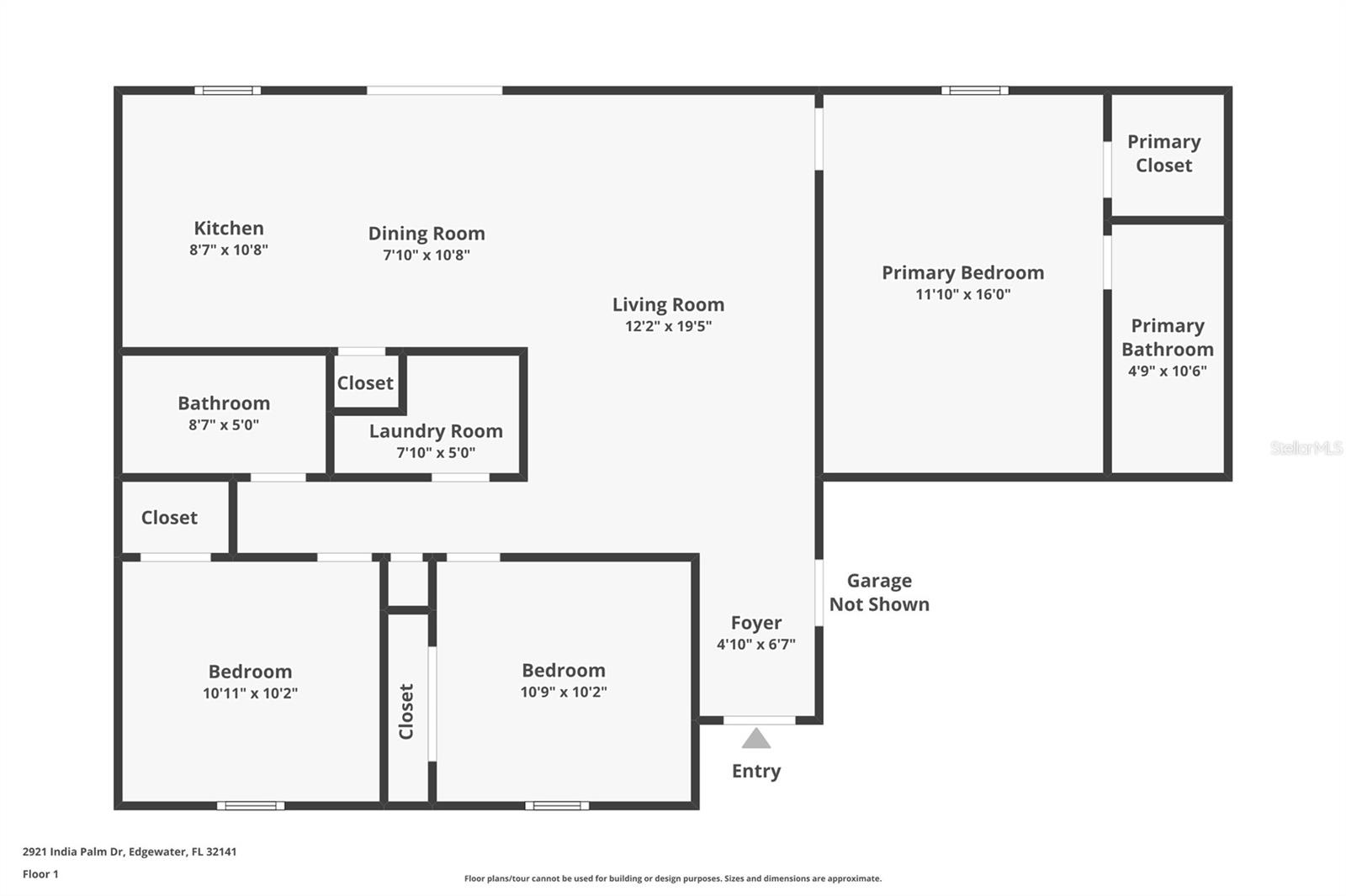
Bedrooms
3
|
Bathrooms
2
|
Living Area
1,267 Sqft
|
Lot Size
15,000 Sqft
|
| Property Features | Property Features | |||
|---|---|---|---|---|
| MLS ID: | MFRNS1084349 | Year Built: | 2022 | |
| Appliances: | Dishwasher, Dryer, Electric Water Heater, Microwave, Range, Washer | Construction Materials: | Block, Stucco | |
| Cooling: | Central Air | Country: | US | |
| County Or Parish: | Volusia | Direction Faces: | West | |
| Exterior Features: | Private Mailbox | Flooring: | Carpet, Ceramic Tile, Vinyl | |
| Foundation Details: | Slab | Furnished: | Furnished | |
| Heating: | Central | Laundry Features: | Laundry Room | |
| Levels: | One | Listing Agreement: | Exclusive Right To Sell | |
| Listing Terms: | Cash, Conventional, FHA, VA Loan | Occupant Type: | Vacant | |
| Possession: | Close Of Escrow | Property Sub Type: | Single Family Residence | |
| Property Type: | Residential | Road Responsibility: | Public Maintained Road | |
| Road Surface Type: | Asphalt | Roof: | Shingle | |
| Sewer: | Public Sewer | Showing Requirements: | Supra Lock Box, ShowingTime | |
| Special Listing Conditions: | None | Standard Status: | Active | |
| State Or Province: | FL | Utilities: | BB/HS Internet Available, Cable Available, Electricity Connected, Sewer Connected, Water Connected | |
| Water Source: | Public | |||
| Rooms | Rooms | |||
|---|---|---|---|---|
| Primary Bedroom: | Bedroom 2: | |||
| Bedroom 3: | Laundry: | |||
| Balcony/Porch/Lanai: | 14x29 ft | Living Room: | 12x19 ft | |
| Kitchen: | 9x10 ft | |||