
|
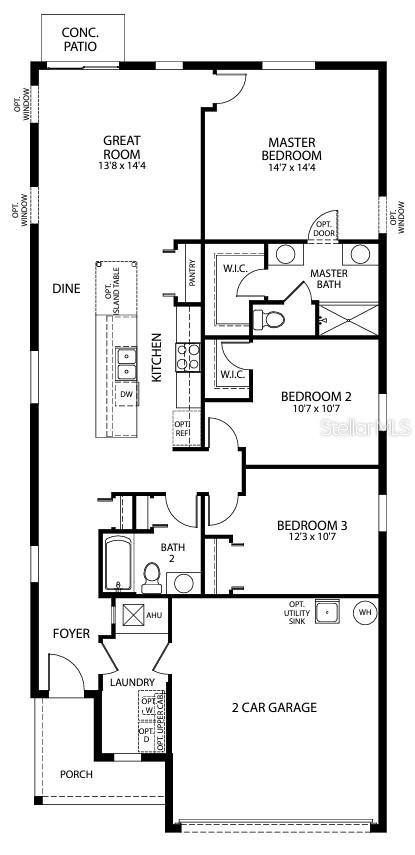
Bedrooms
3
|
Bathrooms
2
|
Living Area
1,492 Sqft
|
Lot Size
4,400 Sqft
|
| Property Features | Property Features | |||
|---|---|---|---|---|
| MLS ID: | MFRO6204463 | Year Built: | 2024 | |
| Appliances: | Dishwasher, Disposal, Dryer, Electric Water Heater, Range, Refrigerator, Washer | Architectural Style: | Contemporary | |
| Construction Materials: | Block, Stucco | Cooling: | Central Air | |
| Country: | US | County Or Parish: | Polk | |
| Direction Faces: | West | Exterior Features: | Sliding Doors | |
| Flooring: | Carpet, Ceramic Tile | Foundation Details: | Slab | |
| Heating: | Central, Electric | Laundry Features: | Laundry Room | |
| Levels: | One | Listing Agreement: | Exclusive Right To Sell | |
| Listing Terms: | Cash, Conventional, FHA, VA Loan | Lot Features: | Paved | |
| Occupant Type: | Vacant | Patio And Porch Features: | Patio | |
| Pets Allowed: | Yes | Possession: | Close Of Escrow | |
| Property Condition: | Pre-Construction | Property Sub Type: | Single Family Residence | |
| Property Type: | Residential | Road Surface Type: | Paved | |
| Roof: | Shingle | Security Features: | Smoke Detector(s) | |
| Sewer: | Public Sewer | Showing Requirements: | Appointment Only | |
| Special Listing Conditions: | None | Standard Status: | Active | |
| State Or Province: | FL | Utilities: | Cable Available | |
| Water Source: | Public | Window Features: | Thermal Windows | |
| Rooms | Rooms | |||
|---|---|---|---|---|
| Primary Bedroom: | 14x14 ft | Bedroom 2: | 10x10 ft | |
| Bedroom 3: | 12x10 ft | Great Room: | 13x14 ft | |
| Kitchen: | 8x12 ft | |||