
|
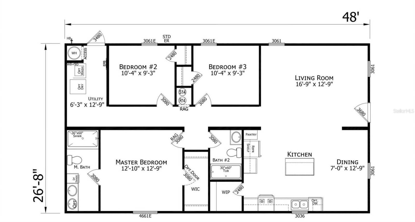
Bedrooms
3
|
Bathrooms
2
|
Living Area
1,284 Sqft
|
Lot Size
7,500 Sqft
|
| Property Features | Property Features | |||
|---|---|---|---|---|
| MLS ID: | MFRO6224961 | Year Built: | 2024 | |
| Appliances: | Dishwasher, Range, Refrigerator | Body Type: | Single Wide | |
| Construction Materials: | Vinyl Siding | Cooling: | Central Air | |
| Country: | US | Direction Faces: | South | |
| Exterior Features: | Balcony | Flooring: | Laminate, Linoleum | |
| Foundation Details: | Pillar/Post/Pier | Furnished: | Unfurnished | |
| Heating: | Central | Laundry Features: | Laundry Room | |
| Levels: | One | Listing Agreement: | Exclusive Right To Sell | |
| Occupant Type: | Owner | Pets Allowed: | Yes | |
| Property Condition: | Completed | Property Sub Type: | Manufactured Home - Post 1977 | |
| Property Type: | Residential | Road Surface Type: | Asphalt | |
| Roof: | Shingle | Sewer: | Public Sewer | |
| Showing Requirements: | Call Owner, See Remarks | Special Listing Conditions: | None | |
| Standard Status: | Active | State Or Province: | FL | |
| Utilities: | Sewer Connected | Water Source: | Public | |
| Rooms | Rooms | |||
|---|---|---|---|---|
| Primary Bedroom: | 13x13 ft | Kitchen: | 16x13 ft | |
| Living Room: | Dining Room: | |||