
|
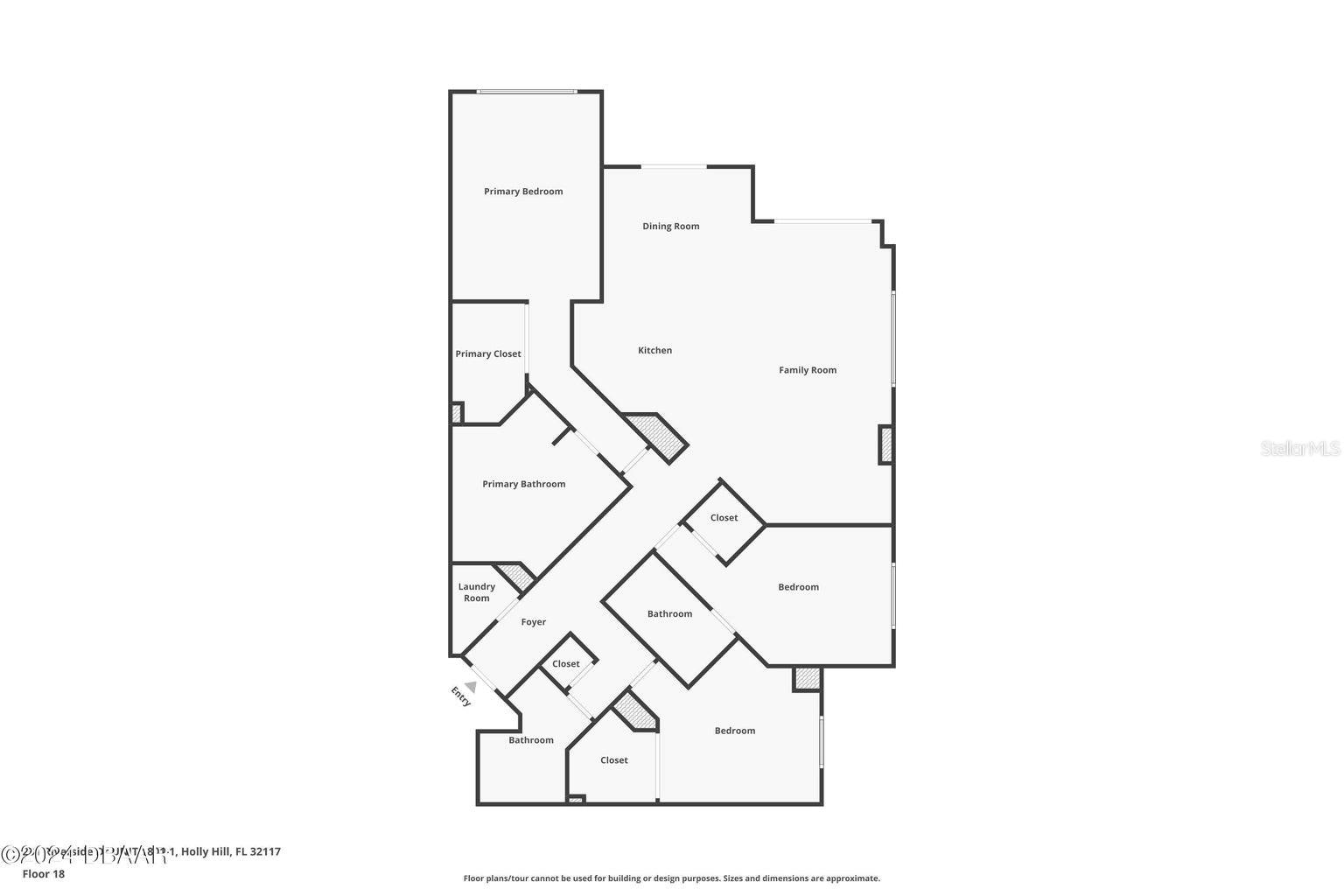
Bedrooms
3
|
Bathrooms
3
|
Living Area
2,239 Sqft
|
| Property Features | Property Features | |||
|---|---|---|---|---|
| MLS ID: | MFRO6233783 | Year Built: | 2007 | |
| Accessibility Features: | Accessible Approach with Ramp, Accessible Bedroom, Accessible Closets, Accessible Common Area, Accessible Doors, Accessible Electrical and Environmental Controls, Accessible Elevator Installed, Accessible Entrance, Accessible Full Bath, Visitor Bathroom, Accessible Hallway(s), Accessible Kitchen, Accessible Central Living Area | Appliances: | Cooktop, Dishwasher, Disposal, Dryer, Freezer, Ice Maker, Microwave, Refrigerator, Washer | |
| Architectural Style: | Contemporary | Association Amenities: | Cable TV, Elevator(s), Fitness Center, Gated, Lobby Key Required, Pool, Sauna, Security, Spa/Hot Tub, Storage, Vehicle Restrictions, Wheelchair Access | |
| Association Fee Includes: | Guard - 24 Hour, Cable TV, Common Area Taxes, Pool, Escrow Reserves Fund, Insurance, Internet, Maintenance Structure, Maintenance Grounds, Maintenance, Management, Pest Control, Recreational Facilities, Security, Sewer, Trash, Water | Community Features: | Clubhouse, Fitness Center, Gated Community - Guard, Pool, Sidewalks, Wheelchair Access | |
| Construction Materials: | Block, Brick, Concrete, Stucco | Cooling: | Central Air | |
| Country: | US | Direction Faces: | East | |
| Disclosures: | Condominium Disclosure Available | Exterior Features: | Balcony, Courtyard, Irrigation System, Lighting, Other, Outdoor Grill, Outdoor Shower, Private Mailbox, Sauna, Sidewalk, Storage | |
| Fencing: | Fenced | Flooring: | Granite, Luxury Vinyl, Marble, Tile | |
| Foundation Details: | Block, Brick/Mortar, Concrete Perimeter, Slab | Furnished: | Unfurnished | |
| Heating: | Central | Laundry Features: | Inside | |
| Levels: | One | Listing Agreement: | Exclusive Right To Sell | |
| Listing Terms: | Cash, Conventional | Occupant Type: | Vacant | |
| Parking Features: | Assigned, Covered, Guest | Patio And Porch Features: | Covered, Patio | |
| Pets Allowed: | Breed Restrictions, Cats OK, Dogs OK, Number Limit | Pool Features: | Heated, In Ground | |
| Possession: | Close of Escrow | Property Condition: | Completed | |
| Property Sub Type: | Condominium | Property Type: | Residential | |
| Road Responsibility: | Private Maintained Road, Public Maintained Road | Road Surface Type: | Paved | |
| Roof: | Concrete | Security Features: | Closed Circuit Camera(s), Fire Alarm, Fire Sprinkler System, Security Gate, Security Lights, Smoke Detector(s) | |
| Sewer: | Public Sewer | Showing Requirements: | Call Before Showing, Call Listing Agent, Call Listing Office | |
| Spa Features: | Heated, In Ground | Special Listing Conditions: | None | |
| Standard Status: | Active | State Or Province: | FL | |
| Utilities: | Cable Available | View: | City, Pool, Water | |
| Water Source: | Public | Waterfront Features: | Marina, River Front | |
| Window Features: | Impact Glass/Storm Windows | |||
| Rooms | Rooms | |||
|---|---|---|---|---|
| Primary Bedroom: | Bedroom 2: | |||
| Bedroom 3: | Living Room: | |||
| Kitchen: | ||||