
|
Bedrooms
3
|
Bathrooms
2
|
Living Area
1,248 Sqft
|
Lot Size
10,060 Sqft
|
| Property Features | Property Features | |||
|---|---|---|---|---|
| MLS ID: | MFRO6273626 | Year Built: | 1962 | |
| Appliances: | Dishwasher, Disposal, Dryer, Electric Water Heater, Microwave, Range, Refrigerator, Washer | Construction Materials: | Block, Concrete | |
| Cooling: | Central Air | Country: | US | |
| Direction Faces: | West | Exterior Features: | Private Mailbox | |
| Fencing: | Chain Link, Wood | Flooring: | Ceramic Tile, Luxury Vinyl | |
| Foundation Details: | Block, Slab | Heating: | Central, Electric | |
| Laundry Features: | Laundry Room | Levels: | One | |
| Listing Agreement: | Exclusive Right To Sell | Lock Box Type: | SentriLock | |
| Lot Features: | Oversized Lot, Private, Paved | Occupant Type: | Vacant | |
| Other Structures: | Shed(s), Storage, Workshop | Patio And Porch Features: | Covered, Porch | |
| Pets Allowed: | Yes | Pool Features: | Gunite, In Ground | |
| Property Sub Type: | Single Family Residence | Property Type: | Residential | |
| Road Surface Type: | Concrete, Paved | Roof: | Membrane | |
| Sewer: | Septic Tank | Showing Requirements: | Sentri Lock Box, Lock Box Electronic, See Remarks, ShowingTime | |
| Special Listing Conditions: | None | Standard Status: | Active | |
| State Or Province: | FL | Utilities: | BB/HS Internet Available, Cable Connected, Electricity Connected, Fiber Optics, Sewer Available | |
| Vegetation: | Oak Trees | Water Source: | Well | |
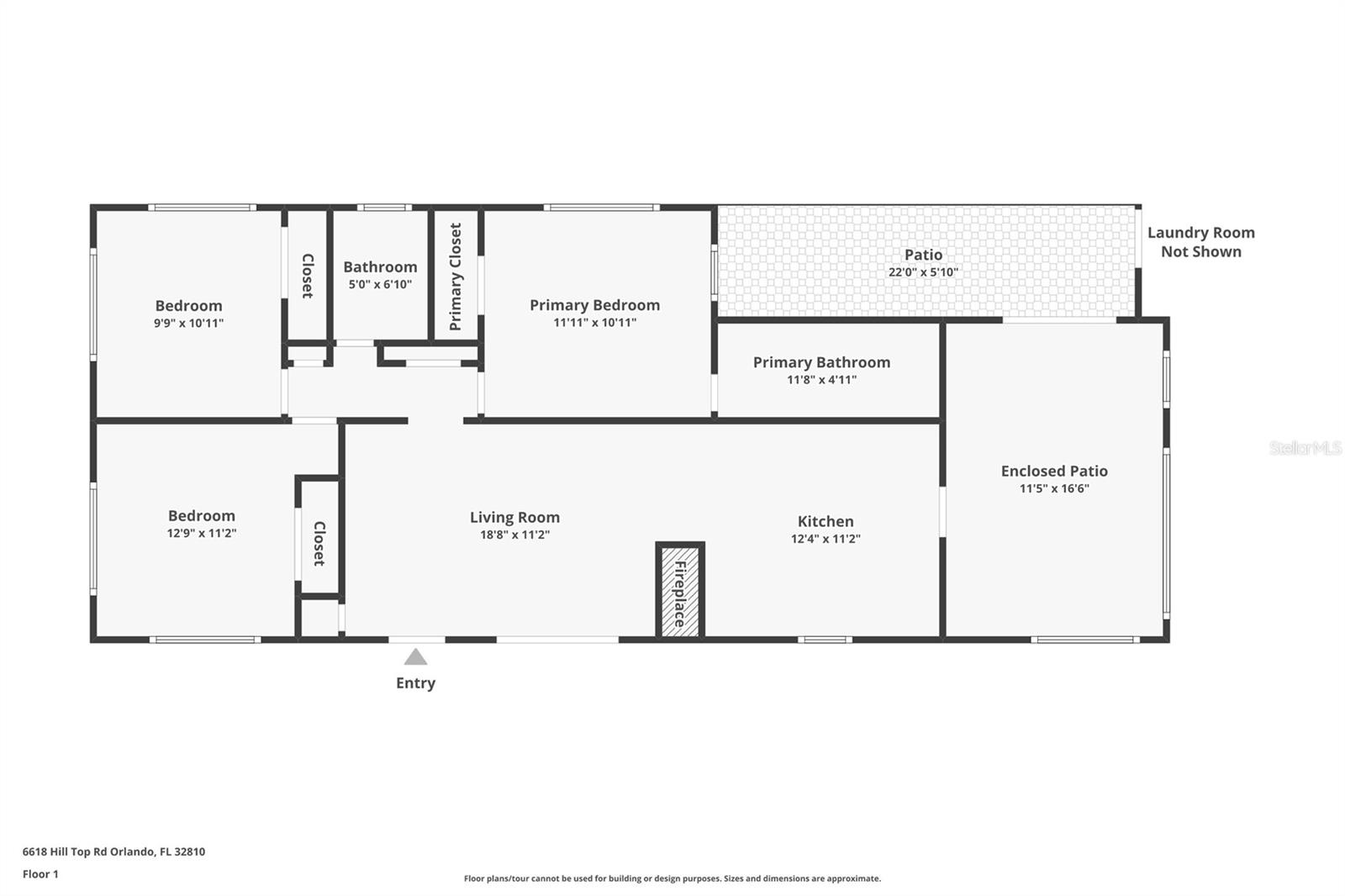
| Rooms | Rooms | |||
|---|---|---|---|---|
| Living Room: | 19x12 ft | Primary Bedroom: | 13x11 ft | |
| Primary Bathroom: | 12x6 ft | Bathroom 2: | 8x6 ft | |
| Bedroom 2: | 12x10 ft | Bedroom 3: | 13x11 ft | |
| Kitchen: | 16x12 ft | Florida Room: | 12x17 ft | |