
|
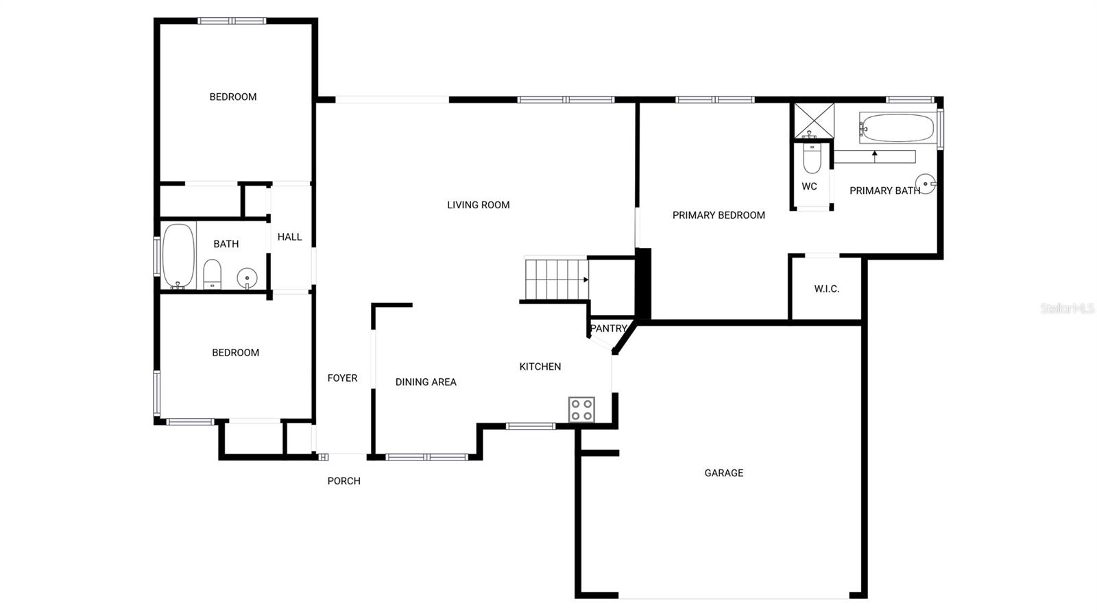
Bedrooms
3
|
Bathrooms
2
|
Living Area
1,552 Sqft
|
Lot Size
10,906 Sqft
|
| Property Features | Property Features | |||
|---|---|---|---|---|
| MLS ID: | MFRO6276024 | Year Built: | 1988 | |
| Appliances: | Electric Water Heater, Microwave, Other | Association Fee Includes: | None | |
| Community Features: | None | Construction Materials: | Stucco | |
| Cooling: | Central Air | Country: | US | |
| Direction Faces: | East | Exterior Features: | Other | |
| Fencing: | Other | Fireplace Features: | Wood Burning | |
| Flooring: | Carpet, Tile | Foundation Details: | Slab | |
| Heating: | Central | Laundry Features: | In Garage | |
| Levels: | Two | Listing Agreement: | Exclusive Agency | |
| Listing Terms: | Cash, Conventional, VA Loan | Occupant Type: | Vacant | |
| Parking Features: | Driveway | Property Sub Type: | Single Family Residence | |
| Property Type: | Residential | Road Surface Type: | Asphalt | |
| Roof: | Shingle | Security Features: | Security System Owned | |
| Sewer: | Septic Tank | Showing Requirements: | Appointment Only, See Remarks, ShowingTime | |
| Special Listing Conditions: | None | Standard Status: | Active | |
| State Or Province: | FL | Utilities: | Electricity Available, Water Available | |
| Water Source: | Public | |||
| Rooms | Rooms | |||
|---|---|---|---|---|
| Kitchen: | Living Room: | |||
| Primary Bedroom: | ||||