
|
Bedrooms
2
|
Bathrooms
3
|
Living Area
1,364 Sqft
|
Lot Size
96,245 Sqft
|
| Property Features | Property Features | |||
|---|---|---|---|---|
| MLS ID: | MFRO6294521 | Year Built: | 1981 | |
| Appliances: | Dishwasher, Dryer, Microwave, Range, Refrigerator, Washer | Architectural Style: | Traditional | |
| Association Fee Includes: | Cable TV, Pool, Maintenance Structure, Maintenance Grounds, Pest Control, Trash, Water | Community Features: | Community Mailbox, Pool, Sidewalks | |
| Construction Materials: | Block, Concrete, Stucco | Cooling: | Central Air | |
| Country: | US | County Or Parish: | Volusia | |
| Direction Faces: | Northeast | Exterior Features: | Balcony, Lighting, Sidewalk | |
| Flooring: | Carpet, Tile | Foundation Details: | Concrete Perimeter, Slab | |
| Furnished: | Furnished | Heating: | Central | |
| Laundry Features: | Inside, Upper Level | Levels: | Two | |
| Listing Agreement: | Exclusive Right To Sell | Listing Terms: | Cash, Conventional, FHA, VA Loan | |
| Occupant Type: | Owner | Pets Allowed: | Cats OK, Yes | |
| Pool Features: | In Ground | Property Sub Type: | Condominium | |
| Property Type: | Residential | Road Surface Type: | Asphalt | |
| Roof: | Shingle | Security Features: | Smoke Detector(s) | |
| Sewer: | Public Sewer | Showing Requirements: | Appointment Only, Call Listing Agent, Combination Lock Box, ShowingTime | |
| Special Listing Conditions: | None | Standard Status: | Active | |
| State Or Province: | FL | Utilities: | Cable Connected, Electricity Connected, Sewer Connected, Water Connected | |
| Water Source: | Public | Waterfront Features: | Intracoastal Waterway, River Front | |
| Window Features: | Blinds | |||
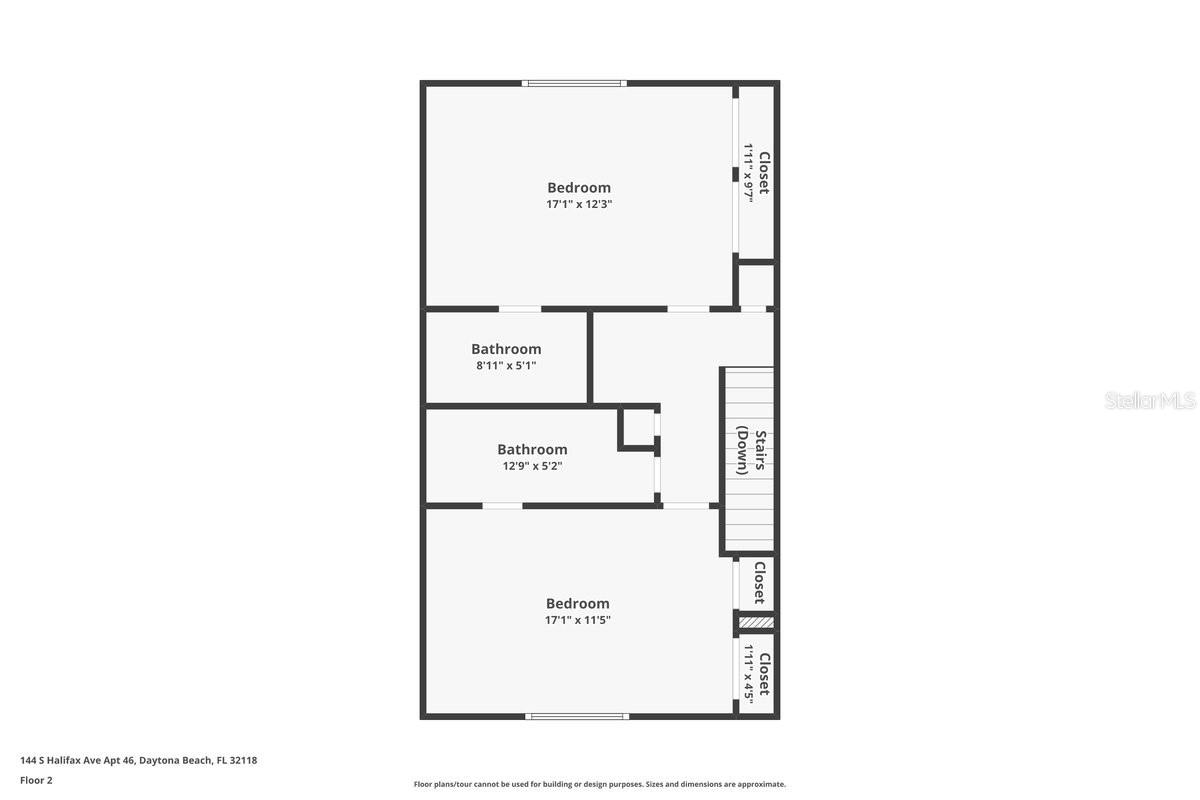
| Rooms | Rooms | |||
|---|---|---|---|---|
| Kitchen: | 11.5x11 ft | Living Room: | 20x13.75 ft | |
| Dining Room: | 17x9 ft | Primary Bedroom: | 17x12.25 ft | |
| Primary Bathroom: | 9x5 ft | Bedroom 2: | 17x11.5 ft | |
| Bathroom 2: | 12.75x5.25 ft | Bathroom 3: | 4.5x4.5 ft | |
| Balcony/Porch/Lanai: | 17.5x9 ft | |||