
|
Bedrooms
4
|
Bathrooms
5
|
Living Area
2,203 Sqft
|
Lot Size
2,614 Sqft
|
| Property Features | Property Features | |||
|---|---|---|---|---|
| MLS ID: | MFRO6295064 | Year Built: | 2024 | |
| Appliances: | Dishwasher, Disposal, Dryer, Electric Water Heater, Microwave, Range, Refrigerator, Washer | Architectural Style: | Other | |
| Association Amenities: | Cable TV, Clubhouse, Fitness Center, Gated, Pool | Association Fee Includes: | Guard - 24 Hour, Cable TV, Pool, Internet, Maintenance Structure, Maintenance Grounds, Trash | |
| Community Features: | Clubhouse, Fitness Center, Gated Community - Guard, Pool, Restaurant | Construction Materials: | Block, Stucco | |
| Cooling: | Central Air | Country: | US | |
| Direction Faces: | West | Exterior Features: | Irrigation System, Rain Gutters, Sidewalk, Sliding Doors, Sprinkler Metered | |
| Flooring: | Carpet, Tile | Foundation Details: | Slab | |
| Heating: | Electric | Laundry Features: | Inside, Upper Level | |
| Levels: | Two | Listing Agreement: | Exclusive Right To Sell | |
| Listing Terms: | Cash, Conventional | Lot Features: | Landscaped, Paved | |
| Occupant Type: | Vacant | Patio And Porch Features: | Patio, Screened | |
| Pets Allowed: | Yes | Pool Features: | In Ground, Screen Enclosure | |
| Possession: | Close Of Escrow | Property Condition: | Completed | |
| Property Sub Type: | Townhouse | Property Type: | Residential | |
| Road Surface Type: | Paved | Roof: | Shingle | |
| Sewer: | Public Sewer | Showing Requirements: | Call Listing Office, Go Direct, See Remarks | |
| Spa Features: | In Ground | Special Listing Conditions: | None | |
| Standard Status: | Active | State Or Province: | FL | |
| Utilities: | Cable Available, Electricity Available, Electricity Connected, Fire Hydrant, Sewer Available, Sewer Connected, Street Lights, Underground Utilities, Water Connected | Vegetation: | Trees/Landscaped | |
| Water Source: | Public | Window Features: | Blinds | |
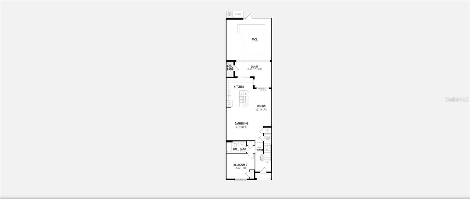
| Rooms | Rooms | |||
|---|---|---|---|---|
| Bedroom 4: | 10x11 ft | Bedroom 3: | 10x11 ft | |
| Loft: | 9x16 ft | Primary Bedroom: | 13x16 ft | |
| Bedroom 2: | 13x11 ft | Kitchen: | ||
| Great Room: | 17x15 ft | Dining Room: | 11x17 ft | |