
|
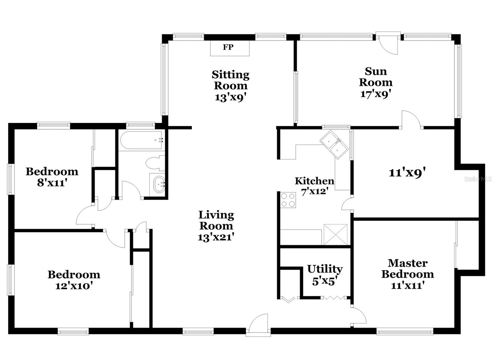
Bedrooms
2
|
Bathrooms
1
|
Living Area
874 Sqft
|
Lot Size
7,500 Sqft
|
| Property Features | Property Features | |||
|---|---|---|---|---|
| MLS ID: | MFRO6295285 | Year Built: | 1966 | |
| Appliances: | Dishwasher, Disposal, Microwave, Range, Refrigerator | Cooling: | Central Air | |
| Country: | US | County Or Parish: | Volusia | |
| Furnished: | Unfurnished | Heating: | Central, Electric | |
| Laundry Features: | None | Levels: | One | |
| Listing Agreement: | Exclusive Right To Lease | Occupant Type: | Vacant | |
| Owner Pays: | None | Pets Allowed: | Breed Restrictions, Cats OK, Dogs OK, Number Limit, Size Limit | |
| Property Condition: | Completed | Property Sub Type: | Single Family Residence | |
| Property Type: | Residential Lease | Road Surface Type: | Asphalt | |
| Security Features: | Fire Alarm, Smoke Detector(s) | Sewer: | Public Sewer | |
| Showing Requirements: | Lock Box Coded, Lock Box No Call, See Remarks | Standard Status: | Active | |
| State Or Province: | FL | Utilities: | Cable Available, Electricity Available, Sewer Available, Water Available | |
| Water Source: | Public | |||
| Rooms | Rooms | |||
|---|---|---|---|---|
| Kitchen: | 7x12 ft | Living Room: | 13x21 ft | |
| Primary Bedroom: | 11x11 ft | Bedroom 1: | 12x10 ft | |
| Bedroom 2: | 8x11 ft | Utility Room: | 5x5 ft | |