
|
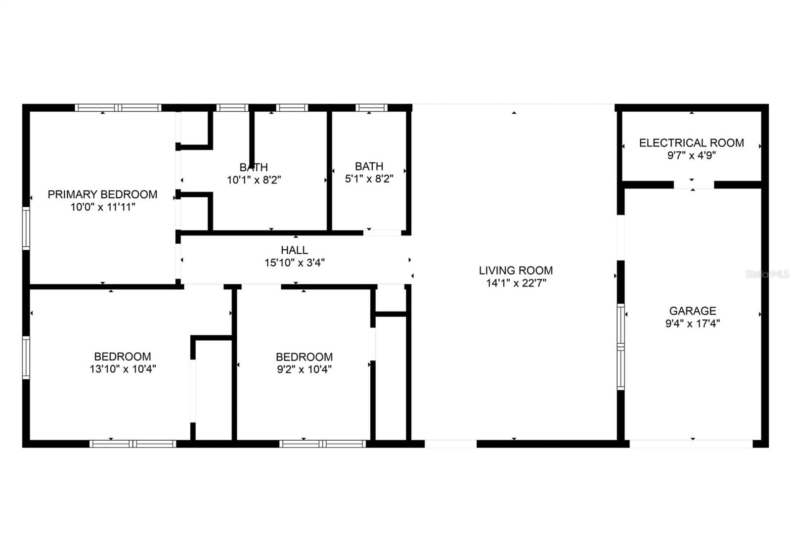
Bedrooms
3
|
Bathrooms
2
|
Living Area
1,242 Sqft
|
Lot Size
8,712 Sqft
|
| Property Features | Property Features | |||
|---|---|---|---|---|
| MLS ID: | MFRO6295422 | Year Built: | 1958 | |
| Appliances: | Microwave, Range, Refrigerator | Construction Materials: | Block, Concrete | |
| Cooling: | Central Air | Country: | US | |
| County Or Parish: | Brevard | Direction Faces: | North | |
| Exterior Features: | Other | Flooring: | Ceramic Tile | |
| Foundation Details: | Slab | Heating: | Central | |
| Laundry Features: | Electric Dryer Hookup | Levels: | One | |
| Listing Agreement: | Exclusive Right To Sell | Listing Terms: | Cash, Conventional, FHA, USDA Loan, VA Loan | |
| Occupant Type: | Vacant | Pets Allowed: | Yes | |
| Possession: | Close Of Escrow | Property Sub Type: | Single Family Residence | |
| Property Type: | Residential | Road Surface Type: | Asphalt, Dirt | |
| Roof: | Shingle | Sewer: | Septic Tank | |
| Showing Requirements: | Call Listing Agent, Go Direct, Lock Box Coded | Special Listing Conditions: | None | |
| Standard Status: | Active | State Or Province: | FL | |
| Utilities: | BB/HS Internet Available, Cable Available, Electricity Available, Sewer Available, Water Available | Water Source: | Well | |
| Rooms | Rooms | |||
|---|---|---|---|---|
| Bedroom 1: | 11x11 ft | Bedroom 2: | 11x11 ft | |
| Bedroom 3: | 12x11 ft | Living Room: | 14x14 ft | |
| Kitchen: | 14x11 ft | Primary Bedroom: | 14x14 ft | |