
|
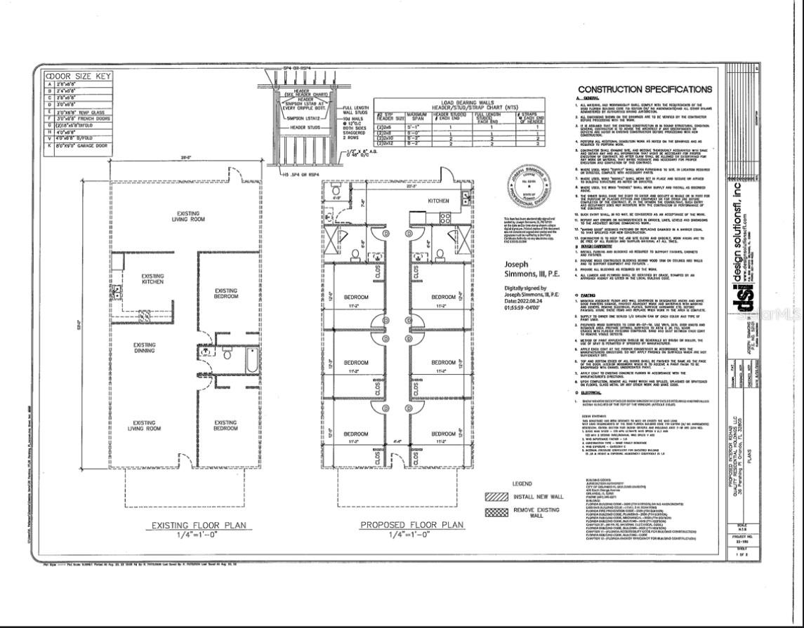
Bedrooms
6
|
Bathrooms
3
|
Living Area
1,120 Sqft
|
Lot Size
7,495 Sqft
|
| Property Features | Property Features | |||
|---|---|---|---|---|
| MLS ID: | MFRO6295837 | Year Built: | 1925 | |
| Appliances: | None | Construction Materials: | Stucco, Wood Frame | |
| Cooling: | Wall/Window Unit(s) | Country: | US | |
| Direction Faces: | East | Exterior Features: | Sidewalk | |
| Flooring: | Other, Wood | Foundation Details: | Crawlspace | |
| Heating: | Wall Units / Window Unit | Laundry Features: | Other | |
| Levels: | One | Listing Agreement: | Exclusive Right To Sell | |
| Listing Terms: | Cash, Lease Option | Lot Features: | City Limits, Near Public Transit, Sidewalk, Paved | |
| Occupant Type: | Vacant | Property Condition: | Fixer | |
| Property Sub Type: | Single Family Residence | Property Type: | Residential | |
| Road Surface Type: | Asphalt, Concrete | Roof: | Shingle | |
| Sewer: | Public Sewer | Showing Requirements: | Appointment Only | |
| Special Listing Conditions: | None | Standard Status: | Active | |
| State Or Province: | FL | Utilities: | BB/HS Internet Available, Cable Available, Cable Connected, Electricity Connected, Public, Street Lights | |
| Water Source: | Public | |||
| Rooms | Rooms | |||
|---|---|---|---|---|
| Bedroom 2: | 12x11 ft | Bedroom 3: | 12x11 ft | |
| Kitchen: | 10x7 ft | Primary Bedroom: | 12x11 ft | |
| Bedroom 5: | 12x11 ft | Bedroom 4: | 12x11 ft | |
| Living Room: | 10x10 ft | |||