
|
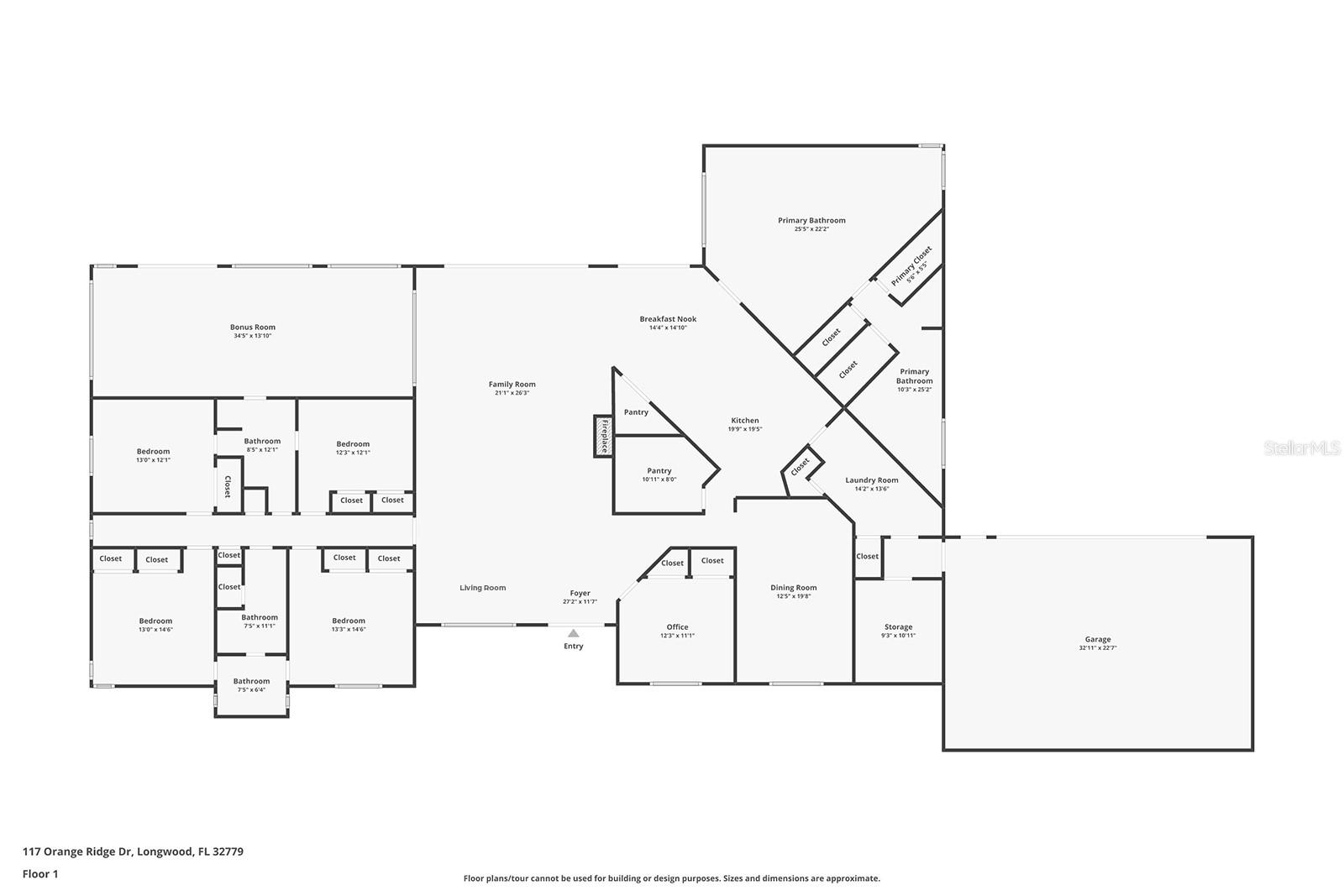
Bedrooms
6
|
Bathrooms
3
|
Living Area
4,365 Sqft
|
Lot Size
67,500 Sqft
|
| Property Features | Property Features | |||
|---|---|---|---|---|
| MLS ID: | MFRO6300595 | Year Built: | 1986 | |
| Appliances: | Built-In Oven, Cooktop, Dishwasher, Electric Water Heater, Exhaust Fan, Refrigerator | Architectural Style: | Florida | |
| Construction Materials: | Block, Stucco | Cooling: | Central Air | |
| Country: | US | Direction Faces: | Southeast | |
| Exterior Features: | Irrigation System, Private Mailbox, Rain Gutters, Sliding Doors | Fencing: | Chain Link, Fenced | |
| Fireplace Features: | Family Room, Wood Burning | Flooring: | Carpet, Ceramic Tile, Wood | |
| Foundation Details: | Slab | Furnished: | Unfurnished | |
| Heating: | Central | Laundry Features: | Inside, Laundry Room, Washer Hookup | |
| Levels: | One | Listing Agreement: | Exclusive Right To Sell | |
| Listing Terms: | Cash, Conventional, VA Loan | Lock Box Type: | SentriLock | |
| Lot Features: | Landscaped, Oversized Lot, Paved | Occupant Type: | Owner | |
| Other Structures: | Barn(s), Greenhouse, Workshop | Parking Features: | Driveway, Garage Door Opener, Garage Faces Rear, Oversized, Parking Pad | |
| Patio And Porch Features: | Covered, Rear Porch | Pets Allowed: | Yes | |
| Possession: | Close Of Escrow | Property Condition: | Completed | |
| Property Sub Type: | Single Family Residence | Property Type: | Residential | |
| Road Responsibility: | Public Maintained Road | Road Surface Type: | Paved | |
| Roof: | Shingle | Sewer: | Septic Tank | |
| Showing Requirements: | Appointment Only, ShowingTime | Special Listing Conditions: | None | |
| Standard Status: | Active | State Or Province: | FL | |
| Utilities: | BB/HS Internet Available, Cable Available, Electricity Connected | Vegetation: | Fruit Trees, Mature Landscaping, Trees/Landscaped | |
| View: | Trees/Woods | Water Source: | Well | |
| Window Features: | Blinds | |||
| Rooms | Rooms | |||
|---|---|---|---|---|
| Family Room: | 21x19 ft | Living Room: | 15x11 ft | |
| Dining Room: | 17x12 ft | Primary Bedroom: | 17x25 ft | |
| Bedroom 2: | 9x12 ft | Bedroom 3: | 13x11 ft | |
| Bathroom 4: | 13x11 ft | Bedroom 5: | 13x11 ft | |
| Office: | 12x11 ft | Kitchen: | 13x14 ft | |
| Bonus Room: | 14x33 ft | |||