
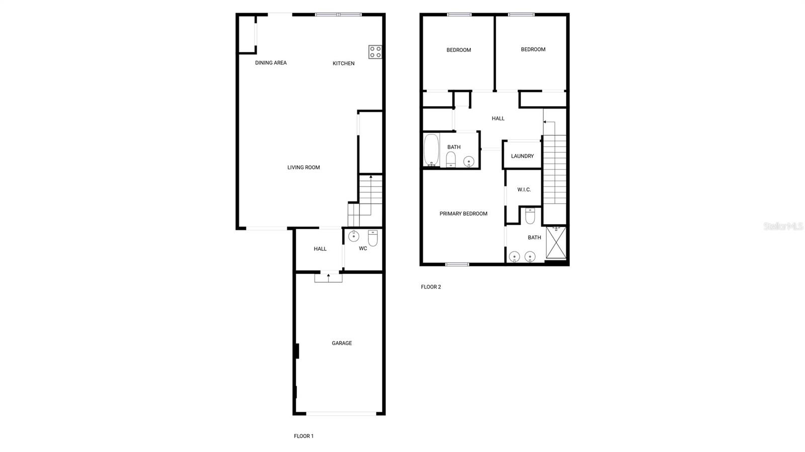
| Bedrooms 3 | Bathrooms 3 | Living Area 1,568 Sqft | 
| Property Features | Property Features | |||
|---|---|---|---|---|
| MLS ID: | MFRO6302306 | Year Built: | 2018 | |
| Appliances: | Dishwasher, Electric Water Heater, Microwave, Other | Association Fee Includes: | Pool, Other | |
| Community Features: | Pool | Construction Materials: | Block, Stucco | |
| Cooling: | Central Air | Country: | US | |
| County Or Parish: | Orange | Direction Faces: | Northwest | |
| Exterior Features: | Other | Flooring: | Carpet, Tile | |
| Foundation Details: | Slab | Heating: | Central | |
| Laundry Features: | Laundry Closet, Upper Level | Levels: | Two | |
| Listing Agreement: | Exclusive Agency | Listing Terms: | Cash, Conventional | |
| Occupant Type: | Vacant | Parking Features: | Driveway | |
| Pets Allowed: | Yes | Property Sub Type: | Townhouse | |
| Property Type: | Residential | Road Surface Type: | Asphalt | |
| Roof: | Shingle | Security Features: | Security System Owned | |
| Sewer: | Public Sewer | Showing Requirements: | Appointment Only, See Remarks, ShowingTime | |
| Special Listing Conditions: | None | Standard Status: | Active | |
| State Or Province: | FL | Utilities: | Electricity Available, Water Available | |
| Water Source: | Public | |||
| Rooms | Rooms | |||
|---|---|---|---|---|
| Kitchen: | Living Room: | |||
| Primary Bedroom: | ||||