
|
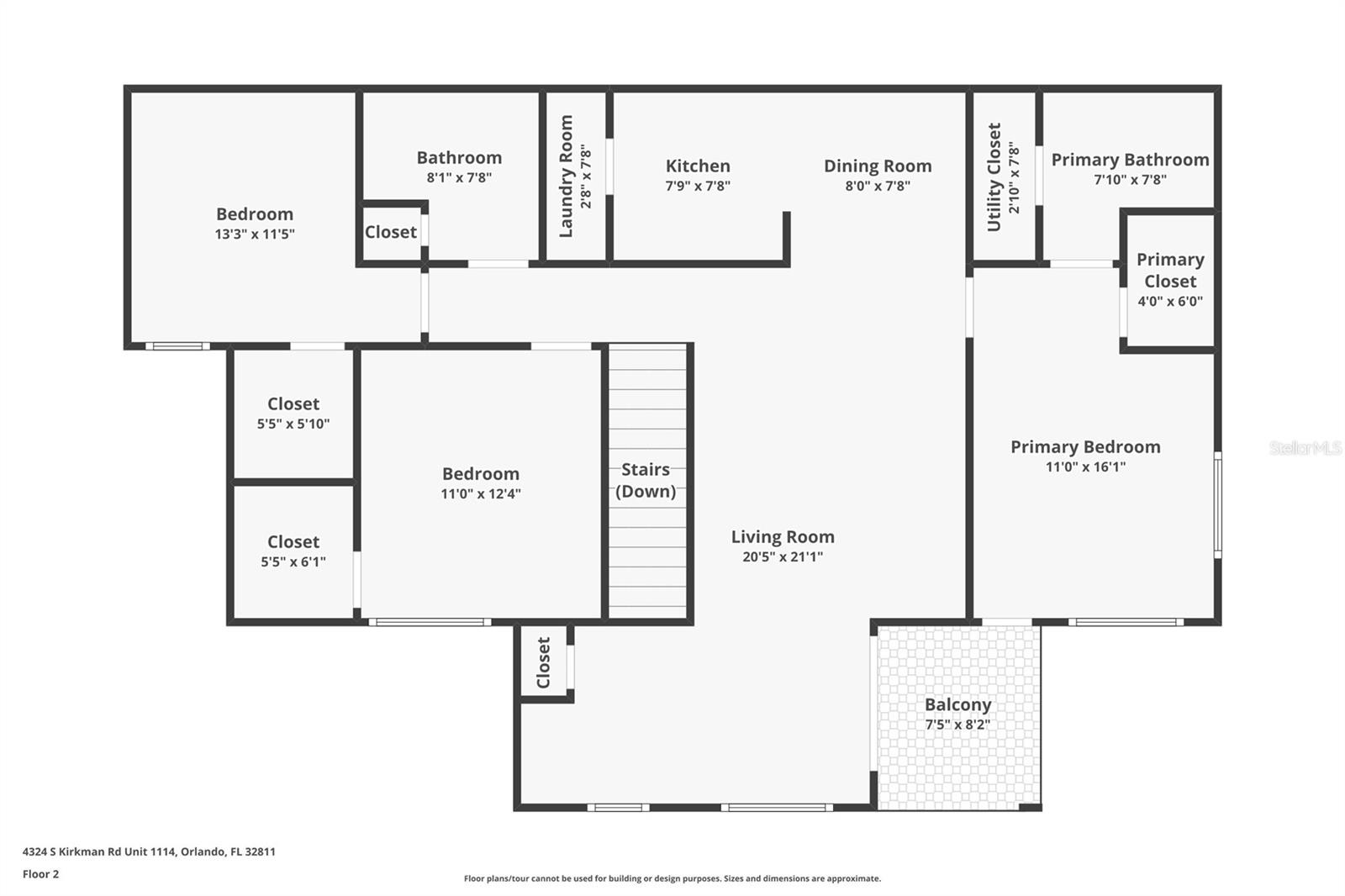
Bedrooms
3
|
Bathrooms
2
|
Living Area
1,245 Sqft
|
Lot Size
7,670 Sqft
|
| Property Features | Property Features | |||
|---|---|---|---|---|
| MLS ID: | MFRO6304439 | Year Built: | 1997 | |
| Appliances: | Cooktop, Dishwasher, Dryer, Microwave, Range, Refrigerator, Washer | Community Features: | Clubhouse, Dog Park, Fitness Center, Gated Community - Guard | |
| Cooling: | Central Air | Country: | US | |
| County Or Parish: | Orange | Flooring: | Luxury Vinyl | |
| Furnished: | Unfurnished | Heating: | Central | |
| Laundry Features: | Laundry Room | Levels: | Two | |
| Listing Agreement: | Exclusive Right To Lease | Occupant Type: | Vacant | |
| Owner Pays: | Grounds Care, Management, Pool Maintenance, Recreational, Security, Taxes, Trash Collection, Water | Pets Allowed: | Breed Restrictions, Cats OK, Dogs OK, Monthly Pet Fee | |
| Property Sub Type: | Condominium | Property Type: | Residential Lease | |
| Road Surface Type: | Asphalt | Security Features: | Gated Community, Security Gate | |
| Showing Requirements: | Lock Box Coded | Standard Status: | Active | |
| State Or Province: | FL | Utilities: | Cable Available, Water Available | |
| View: | Garden | Water Source: | Public | |
| Window Features: | Blinds | |||
| Rooms | Rooms | |||
|---|---|---|---|---|
| Primary Bedroom: | 11x12 ft | Bedroom 2: | 10x11 ft | |
| Living Room: | 12x16 ft | Kitchen: | 10x11 ft | |