
|
Bedrooms
3
|
Bathrooms
2
|
Living Area
1,576 Sqft
|
Lot Size
6,439 Sqft
|
| Property Features | Property Features | |||
|---|---|---|---|---|
| MLS ID: | MFRO6324735 | Year Built: | 1979 | |
| Appliances: | Dryer, Range, Refrigerator, Washer | Association Amenities: | Recreation Facilities, Storage, Tennis Court(s), Vehicle Restrictions | |
| Community Features: | Pool, Sidewalks, Tennis Court(s) | Cooling: | Central Air | |
| Country: | US | County Or Parish: | Orange | |
| Direction Faces: | East | Exterior Features: | Sidewalk, Sliding Doors | |
| Flooring: | Tile | Furnished: | Unfurnished | |
| Heating: | Natural Gas | Laundry Features: | In Garage | |
| Lease Term: | Twelve Months | Levels: | One | |
| Listing Agreement: | Exclusive Right To Lease | Lot Features: | In County, Sidewalk, Unincorporated | |
| Occupant Type: | Vacant | Owner Pays: | None | |
| Patio And Porch Features: | Enclosed, Rear Porch | Pets Allowed: | Breed Restrictions, Cats OK, Dogs OK, Number Limit, Size Limit | |
| Property Condition: | Completed | Property Sub Type: | Single Family Residence | |
| Property Type: | Residential Lease | Road Surface Type: | Concrete | |
| Sewer: | Public Sewer | Showing Requirements: | Lock Box Coded, Lock Box No Call, See Remarks | |
| Standard Status: | Active | State Or Province: | FL | |
| Utilities: | Electricity Connected, Natural Gas Connected, Sewer Connected, Underground Utilities, Water Connected | Water Source: | Public | |
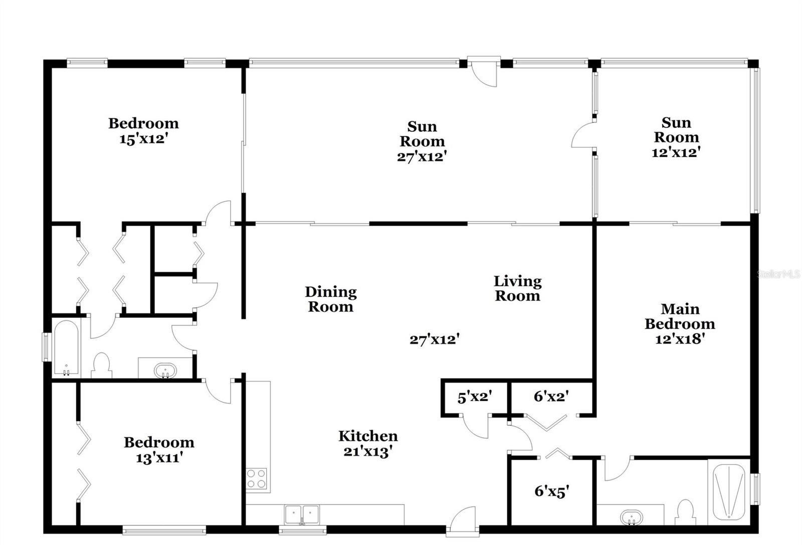
| Rooms | Rooms | |||
|---|---|---|---|---|
| Living Room: | 12x16 ft | Dinette: | 11x12 ft | |
| Primary Bathroom: | 12x18 ft | Bedroom 2: | 14x12 ft | |
| Bedroom 3: | 10x12 ft | Kitchen: | 11x10 ft | |
| Foyer: | 8x9 ft | |||