
|
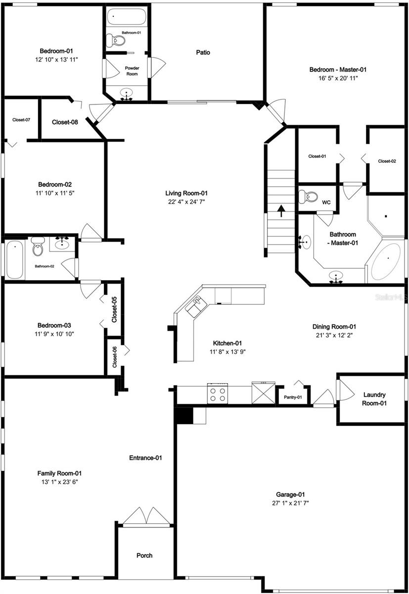
Bedrooms
4
|
Bathrooms
3
|
Living Area
3,016 Sqft
|
Lot Size
7,083 Sqft
|
| Property Features | Property Features | |||
|---|---|---|---|---|
| MLS ID: | MFRO6340639 | Year Built: | 2008 | |
| Appliances: | Dishwasher, Microwave, Range, Refrigerator | Construction Materials: | Stucco | |
| Cooling: | Central Air | Country: | US | |
| County Or Parish: | Hillsborough | Direction Faces: | West | |
| Exterior Features: | Other | Flooring: | Tile, Vinyl | |
| Foundation Details: | Slab | Heating: | Central | |
| Laundry Features: | Laundry Room | Levels: | Two | |
| Listing Agreement: | Exclusive Right To Sell | Listing Terms: | Cash, Conventional, FHA, VA Loan | |
| Occupant Type: | Vacant | Pets Allowed: | Yes | |
| Possession: | Close Of Escrow | Property Sub Type: | Single Family Residence | |
| Property Type: | Residential | Road Surface Type: | Paved | |
| Roof: | Shingle | Sewer: | Public Sewer | |
| Showing Requirements: | Call Listing Office, Lock Box Electronic, See Remarks, ShowingTime | Special Listing Conditions: | None | |
| Standard Status: | Active | State Or Province: | FL | |
| Utilities: | Public, Sewer Available, Water Available | Water Source: | Public | |
| Waterfront Features: | Lake Front | |||
| Rooms | Rooms | |||
|---|---|---|---|---|
| Primary Bedroom: | Bedroom 2: | |||
| Kitchen: | Bedroom 3: | |||
| Bedroom 4: | Living Room: | |||
| Dining Room: | Family Room: | |||