
|
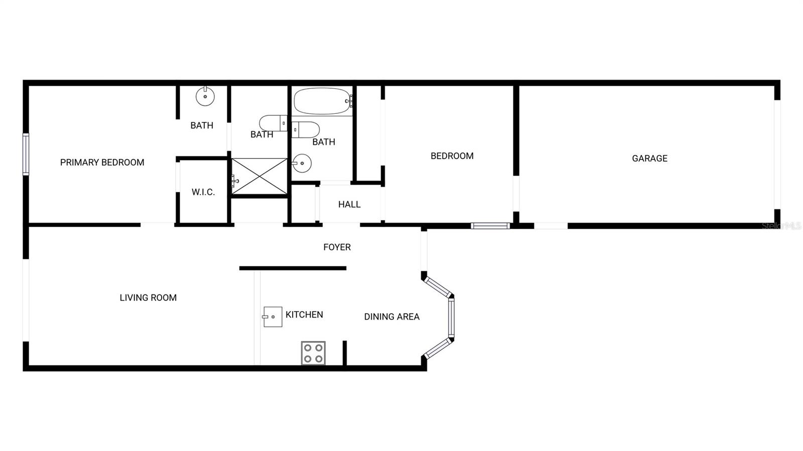
Bedrooms
2
|
Bathrooms
2
|
Living Area
888 Sqft
|
Lot Size
2,661 Sqft
|
| Property Features | Property Features | |||
|---|---|---|---|---|
| MLS ID: | MFRO6342448 | Year Built: | 1986 | |
| Appliances: | Dishwasher, Electric Water Heater, Other | Association Fee Includes: | Pool, Other, Trash | |
| Community Features: | Pool | Construction Materials: | Vinyl Siding | |
| Cooling: | None | Country: | US | |
| County Or Parish: | Pasco | Direction Faces: | South | |
| Exterior Features: | Other | Fencing: | Other | |
| Flooring: | Laminate, Tile, Vinyl | Foundation Details: | Slab | |
| Heating: | Central | Laundry Features: | In Garage | |
| Levels: | One | Listing Agreement: | Exclusive Agency | |
| Listing Terms: | Cash, Conventional | Occupant Type: | Vacant | |
| Parking Features: | Driveway | Pets Allowed: | Yes | |
| Property Sub Type: | Townhouse | Property Type: | Residential | |
| Road Surface Type: | Asphalt | Roof: | Shingle | |
| Security Features: | Security System Owned | Sewer: | Public Sewer | |
| Showing Requirements: | Appointment Only, See Remarks, ShowingTime | Special Listing Conditions: | None | |
| Standard Status: | Active | State Or Province: | FL | |
| Utilities: | Electricity Available, Water Available | Water Source: | Public | |
| Rooms | Rooms | |||
|---|---|---|---|---|
| Kitchen: | Living Room: | |||
| Primary Bedroom: | ||||