
|
Bedrooms
3
|
Bathrooms
3
|
Living Area
2,512 Sqft
|
Lot Size
9,768 Sqft
|
| Property Features | Property Features | |||
|---|---|---|---|---|
| MLS ID: | MFRO6356192 | Year Built: | 2007 | |
| Appliances: | Cooktop, Dishwasher, Disposal, Dryer, Electric Water Heater, Microwave, Range, Refrigerator, Washer | Association Amenities: | Clubhouse, Fitness Center, Gated, Maintenance, Playground, Pool | |
| Association Fee Includes: | Pool, Maintenance Grounds | Community Features: | Clubhouse, Dog Park, Fitness Center, Gated Community - No Guard, Golf Carts OK, Park, Playground, Sidewalks, Street Lights | |
| Construction Materials: | Cement Siding, Concrete, Stucco, Frame | Cooling: | Central Air | |
| Country: | US | County Or Parish: | Lake | |
| Direction Faces: | Northwest | Exterior Features: | French Doors, Lighting, Private Mailbox, Sidewalk, Sprinkler Metered | |
| Flooring: | Carpet, Ceramic Tile, Vinyl | Foundation Details: | Slab | |
| Heating: | Central | Laundry Features: | Electric Dryer Hookup, Inside, Laundry Room, Upper Level | |
| Levels: | Two | Listing Agreement: | Exclusive Agency | |
| Listing Terms: | Cash, Conventional, FHA, VA Loan | Occupant Type: | Vacant | |
| Other Equipment: | Irrigation Equipment | Pets Allowed: | Breed Restrictions, Cats OK, Dogs OK | |
| Property Sub Type: | Single Family Residence | Property Type: | Residential | |
| Road Surface Type: | Asphalt | Roof: | Tile | |
| Sewer: | Public Sewer | Showing Requirements: | ShowingTime | |
| Special Listing Conditions: | None | Standard Status: | Active | |
| State Or Province: | FL | Utilities: | BB/HS Internet Available, Cable Available, Electricity Connected, Sewer Available, Sewer Connected, Sprinkler Recycled, Water Connected | |
| Water Source: | Public | |||
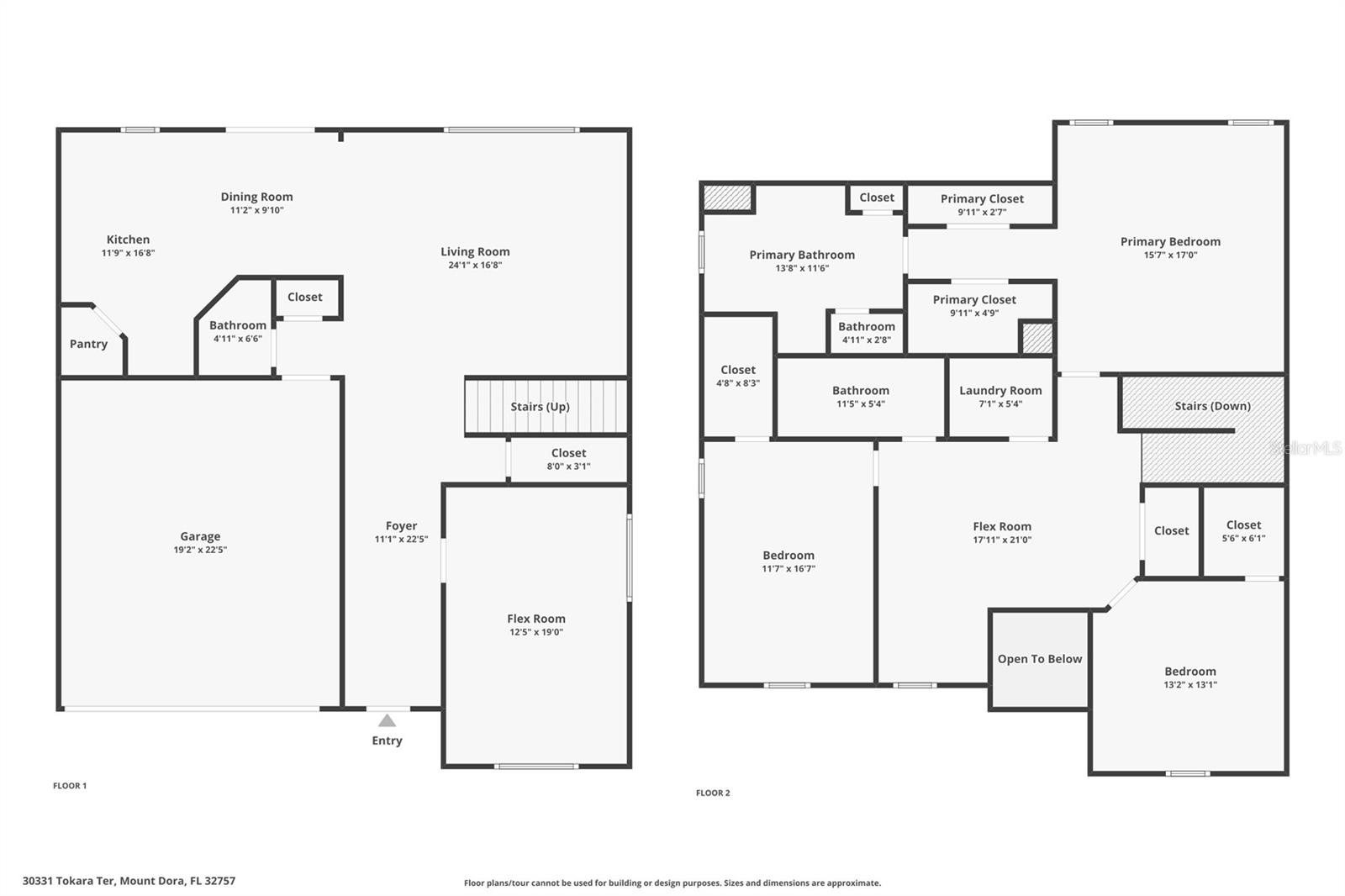
| Rooms | Rooms | |||
|---|---|---|---|---|
| Great Room: | 19x12 ft | Living Room: | 19x20 ft | |
| Kitchen: | 20x16 ft | Bathroom 2: | 11x5 ft | |
| Bonus Room: | 18x16 ft | Primary Bedroom: | 17x15 ft | |
| Primary Bathroom: | 14x11 ft | Bedroom 2: | 16x11 ft | |
| Bedroom 3: | 14x13 ft | Laundry: | 7x5 ft | |
| Balcony/Porch/Lanai: | 22x7 ft | Bathroom 3: | 11x5 ft | |