
|
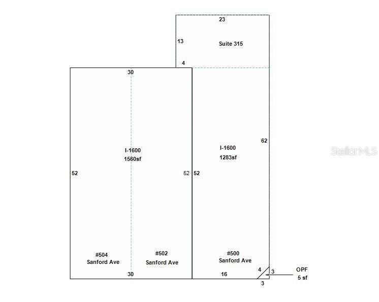
Living Area
2,843 Sqft
|
Lot Size
5,805 Sqft
|
| Property Features | Property Features | |||
|---|---|---|---|---|
| MLS ID: | MFRO6356396 | Year Built: | 1925 | |
| Construction Materials: | Stucco | Cooling: | Central Air | |
| Country: | US | County Or Parish: | Seminole | |
| Foundation Details: | Slab | Lease Term: | Twelve Months | |
| Listing Agreement: | Exclusive Right To Lease | Owner Pays: | Other | |
| Property Sub Type: | Retail | Property Type: | Commercial Lease | |
| Road Frontage Type: | Business District, City Street | Road Surface Type: | Asphalt, Brick | |
| Showing Requirements: | 24 Hour Notice, Appointment Only, Call Listing Agent | Standard Status: | Active | |
| State Or Province: | FL | Tenant Pays: | Electricity, Insurance, Sewer, Trash Collection, Water | |