
| Bedrooms 2 | Bathrooms 2 | Living Area 1,221 Sqft | Lot Size 5,646 Sqft | 
| Property Features | Property Features | |||
|---|---|---|---|---|
| MLS ID: | MFRO6356439 | Year Built: | 1984 | |
| Appliances: | Dishwasher, Microwave, Range, Refrigerator | Association Fee Includes: | Maintenance Grounds, Pest Control | |
| Community Features: | None | Construction Materials: | Block, Stucco | |
| Cooling: | Central Air | Country: | US | |
| County Or Parish: | Orange | Direction Faces: | West | |
| Exterior Features: | Garden, Rain Gutters | Flooring: | Ceramic Tile, Laminate | |
| Foundation Details: | Slab | Heating: | Central | |
| Laundry Features: | Inside | Levels: | One | |
| Listing Agreement: | Exclusive Right To Sell | Occupant Type: | Vacant | |
| Pets Allowed: | Yes | Property Sub Type: | Townhouse | |
| Property Type: | Residential | Road Surface Type: | Asphalt | |
| Roof: | Tile | Sewer: | Public Sewer | |
| Showing Requirements: | Sentri Lock Box | Special Listing Conditions: | None | |
| Standard Status: | Active | State Or Province: | FL | |
| Utilities: | Electricity Connected | Water Source: | Public | |
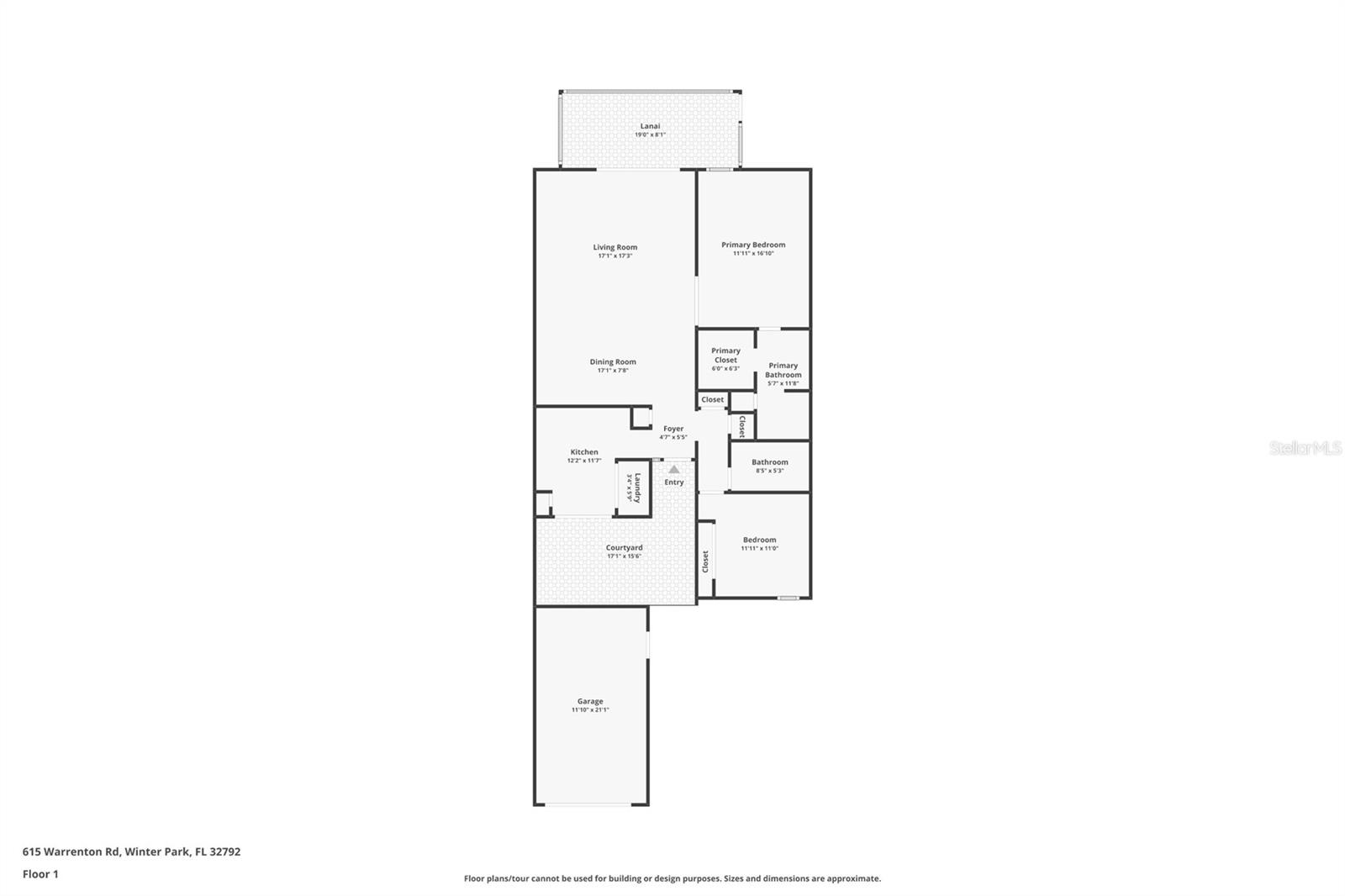
| Rooms | Rooms | |||
|---|---|---|---|---|
| Kitchen: | 12x12 ft | Dining Room: | 17x8 ft | |
| Living Room: | 17x17 ft | Primary Bedroom: | 12x17 ft | |
| Bedroom 2: | 12x11 ft | |||