
|
Bedrooms
3
|
Bathrooms
2
|
Living Area
1,558 Sqft
|
Lot Size
11,250 Sqft
|
| Property Features | Property Features | |||
|---|---|---|---|---|
| MLS ID: | MFRO6361572 | Year Built: | 1988 | |
| Appliances: | Dishwasher, Disposal, Dryer, Microwave, Range, Refrigerator, Washer | Construction Materials: | Block, Stucco | |
| Cooling: | Central Air | Country: | US | |
| County Or Parish: | Volusia | Direction Faces: | West | |
| Exterior Features: | Rain Gutters, Sidewalk | Flooring: | Carpet, Tile | |
| Foundation Details: | Slab | Furnished: | Furnished | |
| Heating: | Central | Laundry Features: | In Garage | |
| Levels: | One | Listing Agreement: | Exclusive Right To Sell | |
| Listing Terms: | Cash, Conventional, FHA, VA Loan | Occupant Type: | Vacant | |
| Other Equipment: | Irrigation Equipment | Pets Allowed: | Yes | |
| Property Sub Type: | Single Family Residence | Property Type: | Residential | |
| Road Surface Type: | Asphalt | Roof: | Shingle | |
| Sewer: | Public Sewer | Showing Requirements: | Sentri Lock Box, Combination Lock Box, Go Direct, See Remarks, ShowingTime | |
| Special Listing Conditions: | None | Standard Status: | Active | |
| State Or Province: | FL | Utilities: | BB/HS Internet Available, Cable Available, Electricity Connected, Sewer Connected, Water Connected | |
| Water Source: | Public | Window Features: | Skylight(s) | |
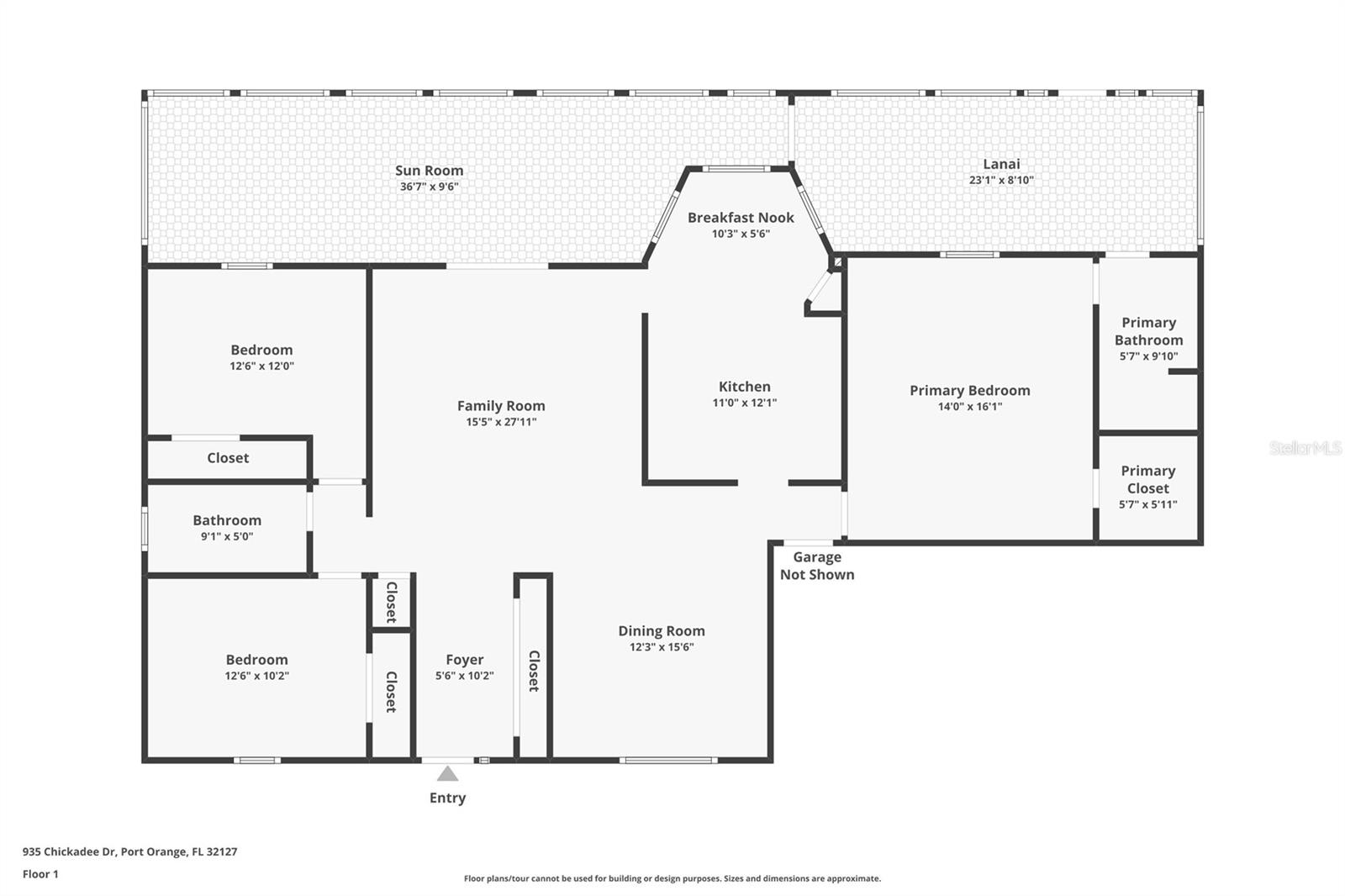
| Rooms | Rooms | |||
|---|---|---|---|---|
| Primary Bedroom: | 14x16 ft | Bedroom 2: | 12.6x12 ft | |
| Bedroom 3: | 12.6x10 ft | Living Room: | 15.5x28 ft | |
| Kitchen: | 11x12 ft | |||