
|
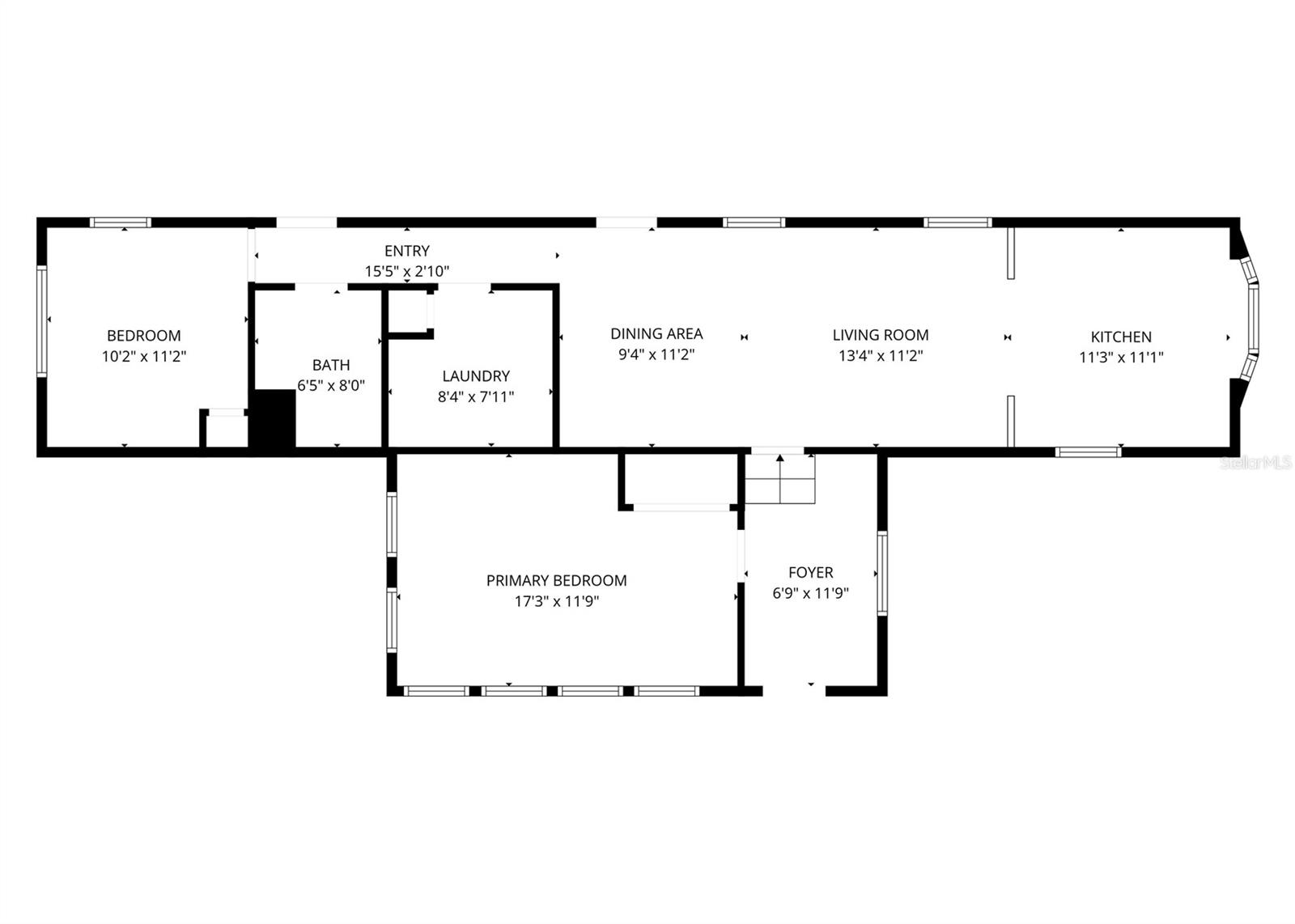
Bedrooms
3
|
Bathrooms
1
|
Living Area
732 Sqft
|
Lot Size
15,834 Sqft
|
| Property Features | Property Features | |||
|---|---|---|---|---|
| MLS ID: | MFRO6378722 | Year Built: | 1973 | |
| Appliances: | None | Body Type: | Single Wide | |
| Construction Materials: | Metal Siding | Cooling: | Other | |
| Country: | US | County Or Parish: | Polk | |
| Direction Faces: | Northeast | Exterior Features: | Other, Storage | |
| Flooring: | Other | Foundation Details: | Crawlspace | |
| Furnished: | Unfurnished | Heating: | Central | |
| Laundry Features: | Inside | Levels: | One | |
| Listing Agreement: | Exclusive Right To Sell | Listing Terms: | Cash, Conventional, FHA, Other, VA Loan | |
| Occupant Type: | Tenant | Pets Allowed: | Yes | |
| Property Condition: | Fixer | Property Sub Type: | Mobile Home | |
| Property Type: | Residential | Road Surface Type: | Gravel | |
| Roof: | Metal | Sewer: | Public Sewer | |
| Showing Requirements: | Call Owner, See Remarks | Special Listing Conditions: | None | |
| Standard Status: | Active | State Or Province: | FL | |
| Utilities: | Public | Water Source: | Public | |
| Rooms | Rooms | |||
|---|---|---|---|---|
| Primary Bedroom: | Bedroom 2: | |||
| Bedroom 3: | Kitchen: | |||
| Living Room: | Dining Room: | |||
| Laundry: | Foyer: | |||
| Primary Bathroom: | ||||