
|
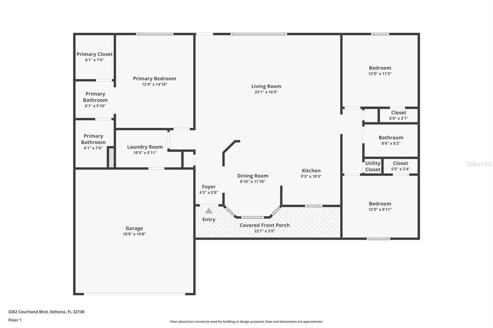
Bedrooms
3
|
Bathrooms
2
|
Living Area
1,577 Sqft
|
Lot Size
10,000 Sqft
|
| Property Features | Property Features | |||
|---|---|---|---|---|
| MLS ID: | MFRO6378924 | Year Built: | 2005 | |
| Appliances: | Dishwasher, Electric Water Heater, Range, Range Hood, Refrigerator | Architectural Style: | Ranch | |
| Community Features: | Park, Playground | Construction Materials: | Block, Brick, Frame | |
| Cooling: | Central Air | Country: | US | |
| County Or Parish: | Volusia | Direction Faces: | Northeast | |
| Exterior Features: | Private Yard | Fencing: | Vinyl, Wood | |
| Flooring: | Ceramic Tile, Luxury Vinyl | Foundation Details: | Slab | |
| Furnished: | Unfurnished | Heating: | Electric | |
| Laundry Features: | Laundry Room | Levels: | One | |
| Listing Agreement: | Exclusive Right To Sell | Listing Terms: | Cash, Conventional, FHA, VA Loan | |
| Lot Features: | Cleared, Landscaped, Paved | Occupant Type: | Owner | |
| Other Equipment: | Private Yard | Parking Features: | Common, Driveway, Garage Door Opener | |
| Patio And Porch Features: | Front Porch, Patio | Pets Allowed: | Yes | |
| Property Condition: | Completed | Property Sub Type: | Single Family Residence | |
| Property Type: | Residential | Road Responsibility: | Public Maintained Road | |
| Road Surface Type: | Paved | Roof: | Shingle | |
| Sewer: | Septic Tank | Showing Requirements: | ShowingTime | |
| Special Listing Conditions: | None | Standard Status: | Active | |
| State Or Province: | FL | Utilities: | BB/HS Internet Available, Cable Available, Electricity Connected, Public, Sewer Connected, Underground Utilities, Water Connected | |
| Vegetation: | Trees/Landscaped | View: | Trees/Woods | |
| Water Source: | Public | |||
| Rooms | Rooms | |||
|---|---|---|---|---|
| Living Room: | Primary Bedroom: | |||
| Bedroom 2: | Bedroom 3: | |||
| Kitchen: | Dining Room: | |||
| Laundry: | ||||