
|
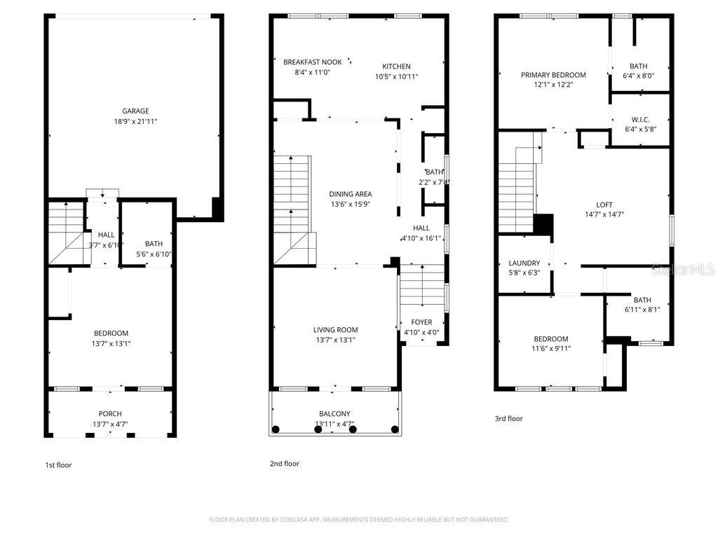
Bedrooms
3
|
Bathrooms
4
|
Living Area
2,123 Sqft
|
Lot Size
1,202 Sqft
|
| Property Features | Property Features | |||
|---|---|---|---|---|
| MLS ID: | MFRO6379018 | Year Built: | 2010 | |
| Appliances: | Dishwasher, Disposal, Dryer, Exhaust Fan, Freezer, Ice Maker, Microwave, Range, Refrigerator, Washer | Architectural Style: | Traditional | |
| Association Amenities: | Clubhouse, Fitness Center, Playground, Pool | Association Fee Includes: | Escrow Reserves Fund, Insurance, Maintenance Structure, Maintenance Grounds, Pool, Recreational Facilities | |
| Community Features: | Clubhouse, Community Mailbox, Deed Restrictions, Fitness Center, Park, Playground, Pool, Sidewalks, Street Lights | Construction Materials: | Block, Stucco | |
| Cooling: | Central Air | Country: | US | |
| County Or Parish: | Orange | Direction Faces: | West | |
| Exterior Features: | Balcony, Courtyard, Sidewalk, Sprinkler Metered | Flooring: | Tile, Wood | |
| Foundation Details: | Block | Furnished: | Unfurnished | |
| Heating: | Central, Electric | Laundry Features: | Inside, Laundry Room, Upper Level | |
| Levels: | Three Or More | Listing Agreement: | Exclusive Right To Sell | |
| Listing Terms: | Cash, Conventional, VA Loan | Lock Box Type: | SentriLock | |
| Lot Features: | Sidewalk, Paved | Occupant Type: | Vacant | |
| Parking Features: | Garage Faces Rear | Patio And Porch Features: | Covered, Front Porch | |
| Pets Allowed: | Yes | Property Sub Type: | Townhouse | |
| Property Type: | Residential | Road Responsibility: | Public Maintained Road | |
| Road Surface Type: | Asphalt, Paved | Roof: | Shingle | |
| Security Features: | Fire Sprinkler System, Security System | Sewer: | Public Sewer | |
| Showing Requirements: | Sentri Lock Box, Appointment Only, See Remarks, ShowingTime | Special Listing Conditions: | None | |
| Standard Status: | Active | State Or Province: | FL | |
| Utilities: | Cable Available, Electricity Connected, Fiber Optics, Phone Available, Public, Sewer Connected, Underground Utilities, Water Connected | Vegetation: | Trees/Landscaped | |
| Water Source: | Public | Window Features: | Blinds, Window Treatments | |
| Rooms | Rooms | |||
|---|---|---|---|---|
| Bedroom 1: | 15x13 ft | Kitchen: | 9x12 ft | |
| Dining Room: | 10x9 ft | Living Room: | 15x14 ft | |
| Loft: | 12x14 ft | Primary Bedroom: | 13x13 ft | |
| Bedroom 2: | 11x12 ft | |||