
|
Bedrooms
2
|
Bathrooms
2
|
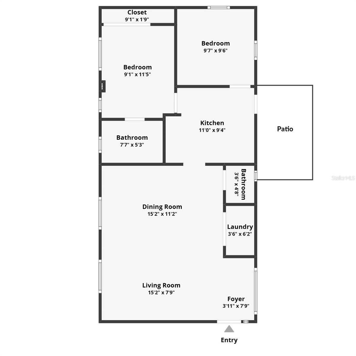
Living Area
800 Sqft
|
Lot Size
9,562 Sqft
|
| Property Features | Property Features | |||
|---|---|---|---|---|
| MLS ID: | MFRO6397761 | Year Built: | 1950 | |
| Accessibility Features: | Accessible Approach with Ramp | Appliances: | Built-In Oven, Dishwasher, Dryer, Microwave, Range, Refrigerator, Tankless Water Heater, Washer | |
| Community Features: | Street Lights | Cooling: | Mini-Split Unit(s) | |
| Country: | US | County Or Parish: | Orange | |
| Exterior Features: | Lighting, Private Entrance, Sprinkler Metered | Fencing: | Partial | |
| Flooring: | Luxury Vinyl | Furnished: | Furnished | |
| Heating: | Electric | Laundry Features: | Inside, Laundry Closet | |
| Lease Term: | 6-12 Month | Levels: | One | |
| Listing Agreement: | Exclusive Right To Lease | Lot Features: | City Limits, Landscaped, Near Public Transit, Paved | |
| Occupant Type: | Tenant | Other Equipment: | Irrigation Equipment, Private Entrance | |
| Owner Pays: | Cable TV, Electricity, Grounds Care, Management, Taxes | Parking Features: | Driveway, Ground Level, Off Street, On Street, Reserved | |
| Patio And Porch Features: | Patio | Pets Allowed: | No | |
| Possession: | Rental Agreement | Property Condition: | Completed | |
| Property Sub Type: | Single Family Residence | Property Type: | Residential Lease | |
| Road Responsibility: | Public Maintained Road | Road Surface Type: | Asphalt | |
| Sewer: | Public Sewer | Showing Requirements: | Appointment Only, ShowingTime | |
| Standard Status: | Active | State Or Province: | FL | |
| Tenant Pays: | Cleaning Fee | Utilities: | Cable Connected, Public, Sewer Connected, Sprinkler Recycled, Water Connected | |
| View: | Trees/Woods | Water Source: | Public | |
| Window Features: | Shades | |||
| Rooms | Rooms | |||
|---|---|---|---|---|
| Living Room: | 9x19 ft | Dining Room: | 8x15 ft | |
| Bedroom 1: | 9x11 ft | Bedroom 2: | 9x9 ft | |
| Kitchen: | 8x10 ft | Laundry: | 4x8 ft | |