
|
Bedrooms
3
|
Bathrooms
2
|
Living Area
1,450 Sqft
|
Lot Size
10,629 Sqft
|
| Property Features | Property Features | |||
|---|---|---|---|---|
| MLS ID: | MFRO6397907 | Year Built: | 1959 | |
| Appliances: | Built-In Oven, Cooktop, Dishwasher, Refrigerator, Tankless Water Heater | Architectural Style: | Florida, Traditional | |
| Construction Materials: | Block | Cooling: | Central Air | |
| Country: | US | County Or Parish: | Osceola | |
| Direction Faces: | West | Exterior Features: | Awning(s), Private Mailbox | |
| Fencing: | Chain Link | Fireplace Features: | Living Room, Wood Burning | |
| Flooring: | Carpet, Laminate, Vinyl | Foundation Details: | Slab | |
| Furnished: | Unfurnished | Heating: | Central, Electric | |
| Laundry Features: | Inside, Laundry Room | Levels: | One | |
| Listing Agreement: | Exclusive Right To Sell | Listing Terms: | Cash, Conventional, FHA, VA Loan | |
| Lot Features: | In County, Landscaped, Level, Paved | Occupant Type: | Vacant | |
| Other Structures: | Shed(s) | Parking Features: | Covered, Driveway | |
| Patio And Porch Features: | Covered, Front Porch, Rear Porch, Screened | Pets Allowed: | Yes | |
| Property Sub Type: | Single Family Residence | Property Type: | Residential | |
| Road Responsibility: | Public Maintained Road | Road Surface Type: | Asphalt, Paved | |
| Roof: | Shingle | Sewer: | Public Sewer | |
| Showing Requirements: | Sentri Lock Box, ShowingTime | Special Listing Conditions: | None | |
| Standard Status: | Active | State Or Province: | FL | |
| Utilities: | BB/HS Internet Available, Cable Connected, Electricity Connected, Sewer Connected, Water Connected | Vegetation: | Trees/Landscaped | |
| Water Source: | Public | Window Features: | Skylight(s) | |
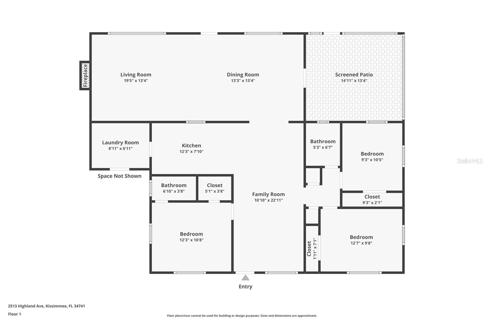
| Rooms | Rooms | |||
|---|---|---|---|---|
| Kitchen: | 12x8 ft | Living Room: | 19x13 ft | |
| Dining Room: | 13x13 ft | Utility Room: | 9x7 ft | |
| Primary Bedroom: | 12x11 ft | Bedroom 2: | 13x10 ft | |
| Bedroom 3: | 10x9 ft | Balcony/Porch/Lanai: | 15x13 ft | |