
|
Bedrooms
3
|
Bathrooms
3
|
Living Area
1,666 Sqft
|
Lot Size
2,696 Sqft
|
| Property Features | Property Features | |||
|---|---|---|---|---|
| MLS ID: | MFRO6399124 | Year Built: | 2026 | |
| Appliances: | Dishwasher, Dryer, Electric Water Heater, Microwave, Range, Refrigerator, Washer | Community Features: | Clubhouse, Fitness Center, Playground, Pool | |
| Cooling: | Central Air | Country: | US | |
| County Or Parish: | Manatee | Furnished: | Unfurnished | |
| Heating: | Central, Electric | Laundry Features: | Laundry Room | |
| Lease Term: | Twelve Months | Levels: | Two | |
| Listing Agreement: | Exclusive Right To Lease | Occupant Type: | Vacant | |
| Owner Pays: | Grounds Care, Internet | Pets Allowed: | Cats OK, Dogs OK, Pet Deposit | |
| Property Condition: | Completed | Property Sub Type: | Townhouse | |
| Property Type: | Residential Lease | Road Surface Type: | Asphalt | |
| Sewer: | Public Sewer | Showing Requirements: | See Remarks, ShowingTime | |
| Standard Status: | Active | State Or Province: | FL | |
| Water Source: | Public | |||
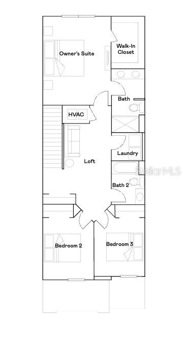
| Rooms | Rooms | |||
|---|---|---|---|---|
| Living Room: | 15x17 ft | Dining Room: | 9x11 ft | |
| Kitchen: | 10x10 ft | Primary Bedroom: | 13x16 ft | |
| Bedroom 2: | 9x12 ft | Bedroom 3: | 9x11 ft | |
| Loft: | 9x14 ft | |||