
|
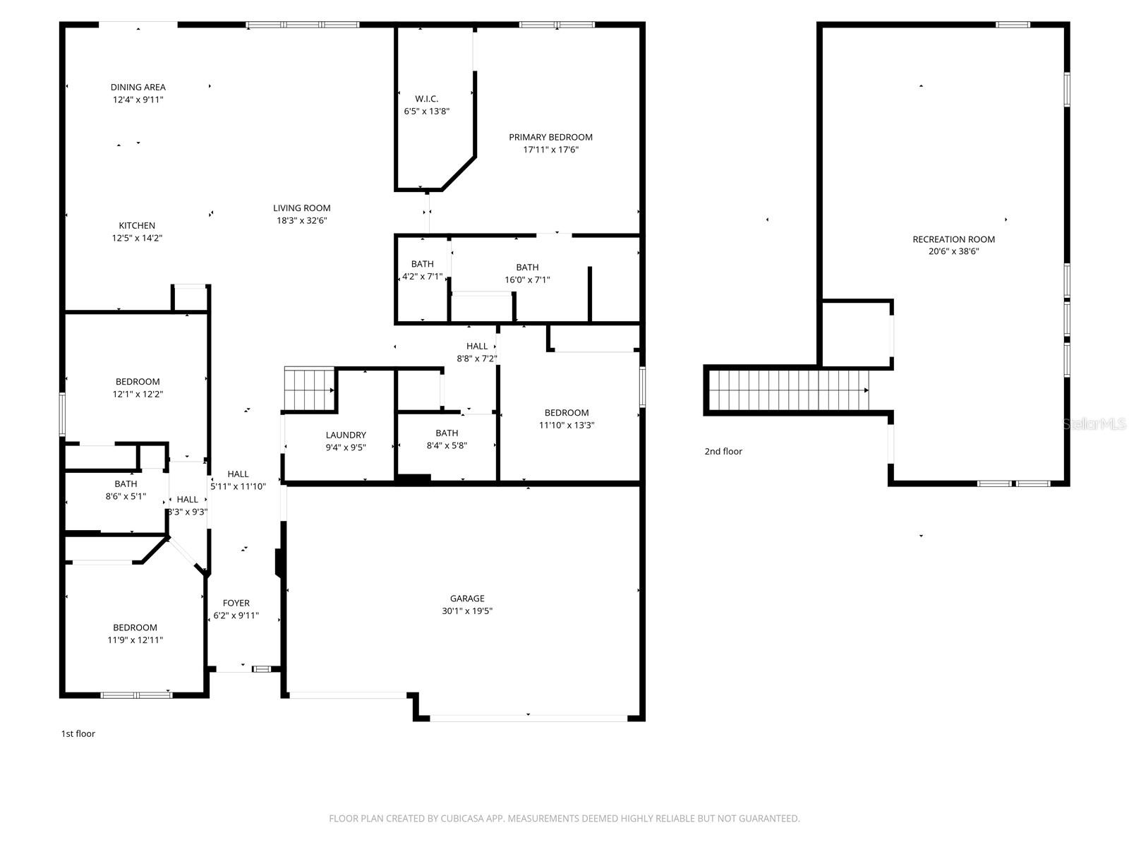
Bedrooms
4
|
Bathrooms
3
|
Living Area
3,118 Sqft
|
Lot Size
7,200 Sqft
|
| Property Features | Property Features | |||
|---|---|---|---|---|
| MLS ID: | MFRO6399465 | Year Built: | 2018 | |
| Appliances: | Dishwasher, Disposal, Microwave, Range, Refrigerator | Association Amenities: | Playground, Pool | |
| Community Features: | Clubhouse, Playground, Pool, Sidewalks | Cooling: | Central Air | |
| Country: | US | County Or Parish: | Hillsborough | |
| Direction Faces: | North | Exterior Features: | Lighting, Sidewalk, Sliding Doors | |
| Flooring: | Carpet, Tile, Vinyl | Furnished: | Unfurnished | |
| Heating: | Central | Laundry Features: | Laundry Room | |
| Levels: | Two | Lot Features: | In County, Sidewalk, Paved | |
| Occupant Type: | Vacant | Owner Pays: | None | |
| Parking Features: | Garage Door Opener | Patio And Porch Features: | Front Porch, Patio, Screened | |
| Pets Allowed: | Yes | Pool Features: | In Ground, Salt Water, Screen Enclosure | |
| Property Sub Type: | Single Family Residence | Property Type: | Residential Lease | |
| Road Surface Type: | Paved | Security Features: | Smoke Detector(s) | |
| Sewer: | Public Sewer | Showing Requirements: | ShowingTime | |
| Standard Status: | Active | State Or Province: | FL | |
| Utilities: | Cable Available, Electricity Available, Public, Sewer Connected, Water Available | Water Source: | Public | |
| Window Features: | Blinds | |||