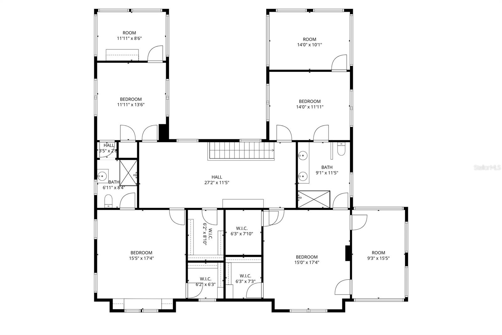
Welcome to this elegant, meticulously maintained historic estate in Ocala, where timeless character meets 2.46 acres of beautifully curated grounds, and is situated just blocks from the charm and energy of Historic Downtown Ocala. This location delivers a rare lifestyle balance: downtown’s restaurants, boutiques, and community events, then return home to your own private retreat framed by space and gardens. The property sits just outside the historic district, giving you the architectural charm buyers love, without the restrictions, so you have the freedom to enhance or expand the exterior over time. For equestrian enthusiasts or those drawn to Ocala’s global reputation, you’re only minutes from the World Equestrian Center. Inside, multiple living spaces are offered, including a formal dining room, a living room with fireplace, and an adjoining sunroom. A separate sitting room with its own fireplace opens to the outdoor patio and deck. Five sunrooms throughout the home flood the interiors with natural light. The custom kitchen offers solid wood cabinetry, granite countertops, a built-in refrigerator, gas range, two ovens, and microwave. A charming breakfast room, mudroom, and built-in office nook are situated off of the kitchen. The downstairs bedroom suite, complete with a private sunroom, features an updated bath with a walk-in shower and soaking tub. Upstairs, the primary suite offers built-in shelving, dual closets, a private sunroom, and a beautifully updated bath with wainscoting, double vanity, and a large walk-in shower. A fifth bedroom adjacent to the suite provides flexibility as a nursery, office, or sitting room, with its sunroom currently serving as an expansive closet. Two additional guest bedrooms share an updated Jack-and-Jill bath, wrapped in Italian marble. Original architectural elements remain intact, including 9–10 foot ceilings, terracotta tile, well-preserved plaster walls, and oak and heart-of-pine flooring. Storage is abundant, with multiple walk-in closets, a cedar closet, and a basement accessible from both inside and out. A true highlight is the cedar-lined, temperature-controlled 12x19 wine room, finished with travertine floors, a private patio entrance, and capacity for over 2,000 bottles. Outdoors, a newly resurfaced saltwater pool sits just off the terrace, with convenient access to a nearby half bath. Expansive covered porches and mature landscaping complete the setting, especially with the added benefit of no historic district limitations. Walkable to downtown, minutes to world-class equestrian amenities, and set on a rare oversized parcel. Call today to schedule a private tour.
Property Details
Property Features Property Features
MLS ID: MFRO6399694 Year Built: 1926
Appliances: Built-In Oven, Dishwasher, Dryer, Microwave, Range, Refrigerator, Washer Construction Materials: Concrete, Stucco
Cooling: Central Air Country: US
County Or Parish: Marion Direction Faces: West
Exterior Features: Balcony, French Doors, Lighting, Rain Gutters Fireplace Features: Family Room, Living Room, Wood Burning
Flooring: Tile, Travertine, Wood Foundation Details: Pillar/Post/Pier
Furnished: Unfurnished Heating: Electric, Heat Pump
Laundry Features: Laundry Room Levels: Two
Listing Agreement: Exclusive Right To Sell Listing Terms: Cash, Conventional, FHA
Occupant Type: Owner Other Equipment: Irrigation Equipment
Other Structures: Shed(s), Storage Parking Features: Circular Driveway
Pool Features: In Ground, Lighting, Salt Water Possession: Close Of Escrow
Property Sub Type: Single Family Residence Property Type: Residential
Road Surface Type: Paved Roof: Shingle
Sewer: Public Sewer Showing Requirements: 24 Hour Notice, Listing Agent Must Accompany, ShowingTime
Special Listing Conditions: None Standard Status: Active
State Or Province: FL Utilities: Electricity Connected, Natural Gas Connected
Water Source: Public
Rooms Rooms
Primary Bedroom: 14x12 ft Family Room: 17x12 ft
Living Room: 28x15 ft Kitchen: 12x12 ft
We love to hear from you