
|
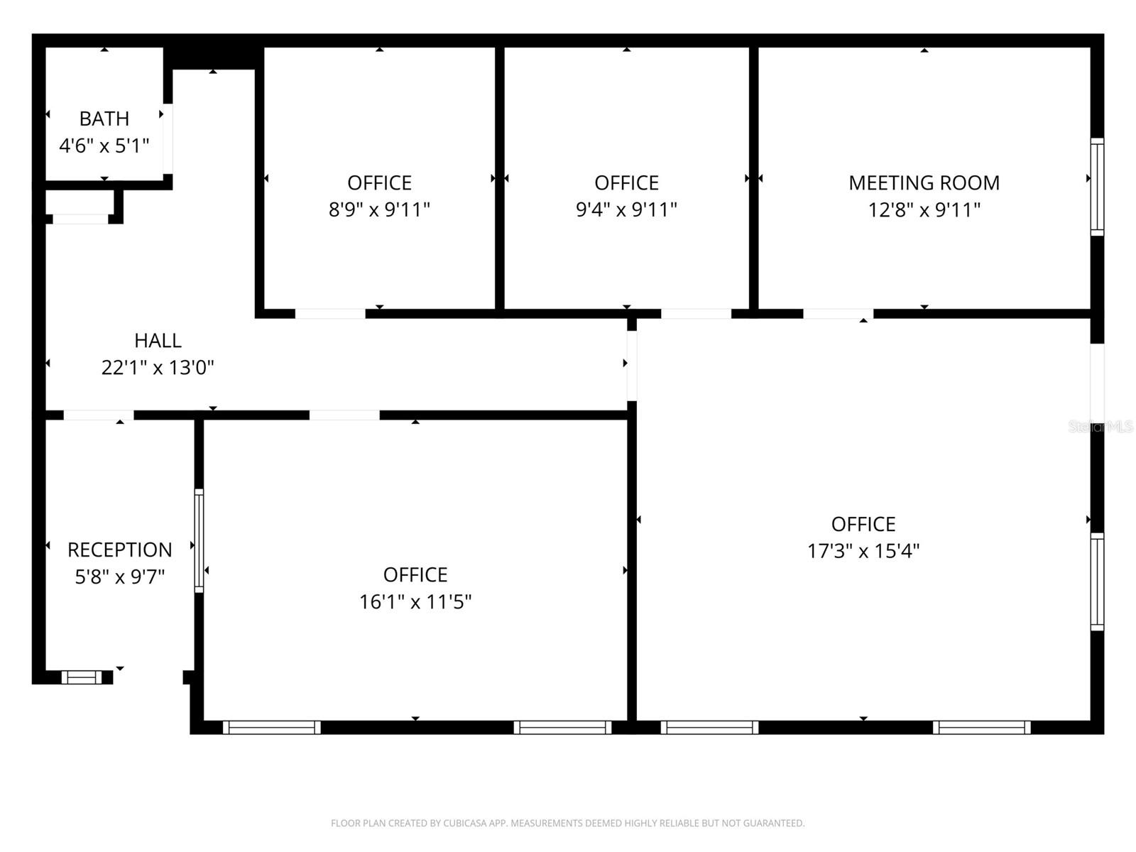
Living Area
2,208 Sqft
|
Lot Size
11,150 Sqft
|
| Property Features | Property Features | |||
|---|---|---|---|---|
| MLS ID: | MFRO6399843 | Year Built: | 1988 | |
| Accessibility Features: | Accessible Approach with Ramp, Accessible Doors, Accessible Electrical and Environmental Controls, Accessible Entrance, Visitor Bathroom | Building Features: | Bathrooms, Ramp, Waiting Room | |
| Construction Materials: | Brick, Stucco | Cooling: | Central Air | |
| Country: | US | County Or Parish: | Seminole | |
| Direction Faces: | South | Flooring: | Carpet | |
| Foundation Details: | Slab | Heating: | Central, Electric | |
| Lease Term: | Three to Five Years | Listing Agreement: | Exclusive Right To Lease | |
| Owner Pays: | Grounds Care, Management, Property Insurance, Sewer, Taxes, Water | Parking Features: | Ground Level, Shared Parking | |
| Possession: | Rental Agreement | Property Condition: | Completed | |
| Property Sub Type: | Office | Property Type: | Commercial Lease | |
| Road Frontage Type: | City Street | Road Responsibility: | Public Maintained Road | |
| Road Surface Type: | Paved | Roof: | Shingle | |
| Sewer: | Septic Needed | Showing Requirements: | Appointment Only, Call Listing Agent 2, Call Listing Agent, See Remarks, ShowingTime | |
| Standard Status: | Active | State Or Province: | FL | |
| Tenant Pays: | Electricity, Internet, Insurance, Telephone | Utilities: | Electrical Nearby, Electricity Available, Phone Available, Water Connected | |
| Water Source: | Public | Window Features: | Blinds | |