
|
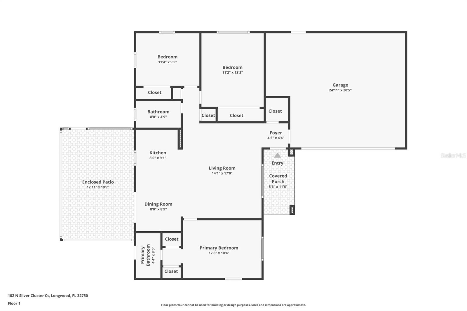
Bedrooms
3
|
Bathrooms
2
|
Living Area
1,166 Sqft
|
Lot Size
9,750 Sqft
|
| Property Features | Property Features | |||
|---|---|---|---|---|
| MLS ID: | MFRO6399945 | Year Built: | 1975 | |
| Appliances: | Dishwasher, Disposal, Microwave, Range, Range Hood, Refrigerator | Construction Materials: | Block | |
| Cooling: | Central Air | Country: | US | |
| County Or Parish: | Seminole | Direction Faces: | East | |
| Exterior Features: | Rain Gutters, Sidewalk, Sliding Doors, Sprinkler Metered | Flooring: | Ceramic Tile, Laminate | |
| Foundation Details: | Slab | Furnished: | Unfurnished | |
| Heating: | Central, Electric | Laundry Features: | In Garage | |
| Levels: | One | Listing Agreement: | Exclusive Right To Sell | |
| Listing Terms: | Cash, Conventional, FHA, VA Loan | Occupant Type: | Owner | |
| Other Equipment: | Irrigation Equipment | Parking Features: | Driveway, Garage Faces Side | |
| Patio And Porch Features: | Covered, Rear Porch, Screened | Pool Features: | In Ground | |
| Property Sub Type: | Single Family Residence | Property Type: | Residential | |
| Road Surface Type: | Asphalt | Roof: | Shingle | |
| Sewer: | Public Sewer | Showing Requirements: | Sentri Lock Box | |
| Special Listing Conditions: | None | Standard Status: | Active | |
| State Or Province: | FL | Utilities: | Cable Connected, Electricity Connected, Public, Sprinkler Meter | |
| Water Source: | Public | |||
| Rooms | Rooms | |||
|---|---|---|---|---|
| Kitchen: | 9x7 ft | Living Room: | 17x14 ft | |
| Primary Bedroom: | 14x10 ft | Bedroom 2: | 13x11 ft | |
| Bedroom 3: | 11x9 ft | |||