
|
Bedrooms
5
|
Bathrooms
3
|
Living Area
2,224 Sqft
|
Lot Size
2,701 Sqft
|
| Property Features | Property Features | |||
|---|---|---|---|---|
| MLS ID: | MFRO6400042 | Year Built: | 2021 | |
| Appliances: | Dishwasher, Disposal, Dryer, Electric Water Heater, Microwave, Range, Refrigerator, Washer | Cooling: | Central Air | |
| Country: | US | County Or Parish: | Polk | |
| Furnished: | Furnished | Heating: | Central | |
| Laundry Features: | Laundry Room | Lease Term: | Month To Month | |
| Levels: | Two | Occupant Type: | Vacant | |
| Owner Pays: | Grounds Care, Other, Trash Collection | Pets Allowed: | Dogs OK | |
| Property Sub Type: | Single Family Residence | Property Type: | Residential Lease | |
| Road Surface Type: | Asphalt | Showing Requirements: | Combination Lock Box | |
| Standard Status: | Active | State Or Province: | FL | |
| Tenant Pays: | Cleaning Fee | |||
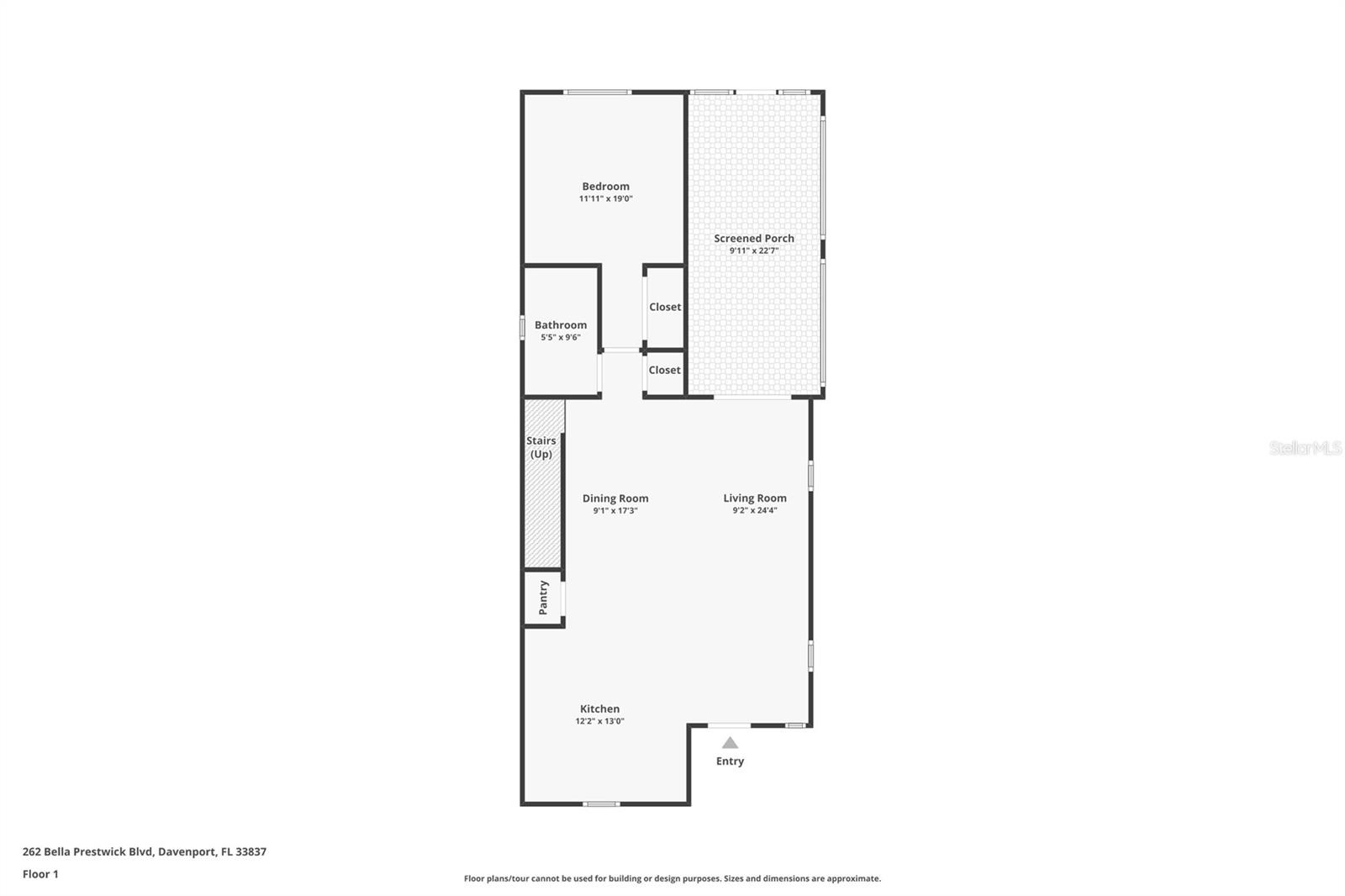
| Rooms | Rooms | |||
|---|---|---|---|---|
| Primary Bedroom: | 13x16 ft | Bedroom 2: | 11x11 ft | |
| Bedroom 3: | 10x11 ft | Bedroom 4: | 11x11 ft | |
| Bedroom 5: | 12x13 ft | Great Room: | 20x18 ft | |
| Kitchen: | 14x13 ft | Dining Room: | ||