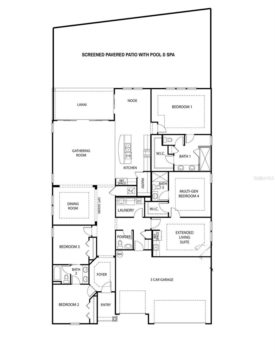
Positioned on a quiet cul-de-sac and just minutes to the beaches, this exceptional pool home delivers! Featuring 2,795 sqft, this 4 Bedroom, 3.5 Bathroom home is thoughtfully designed for modern living. A private Multi-Generational Suite complete with its own living area, kitchenette, bedroom, and full bath provides ideal separation for extended family, guests, or a secluded retreat. The heart of the home features a seamless open-concept layout, where the kitchen, gathering room, and dining spaces connect effortlessly. Step outside to a true backyard escape; an expansive screened paver lanai with pool and spa, all set against a tranquil pond backdrop with stunning sunset views. The extended paver deck and widened driveway enhance both curb appeal and function, leading to a 3 Car Garage featuring epoxy floors, utility sink, and sliding screen doors perfect for added flexibility. Additional highlights include tray ceilings, custom millwork and wainscoting, water softener, reverse osmosis system, whole-home gutters, dedicated irrigation well for efficiency and cost savings, and a new water heater. Enjoy the added advantage of a LOW HOA, NO CDD fees and no minimum rental restrictions, offering flexibility for both homeowners and investors. Community amenities include a pool and playground, with nearby boat & RV storage just minutes away; perfect for embracing the coastal lifestyle. A standout opportunity with flexible living, your personal resort-style outdoor space, and a location that keeps you close to everything yet quietly tucked away on one of the best lots in the community.
Property Details
Property Features Property Features
MLS ID: MFRO6400517 Year Built: 2022
Appliances: Dishwasher, Dryer, Electric Water Heater, Kitchen Reverse Osmosis System, Microwave, Range, Refrigerator, Washer, Water Softener Community Features: Park, Playground, Pool
Construction Materials: Cement Siding Cooling: Central Air
Country: US County Or Parish: St Johns
Direction Faces: East Exterior Features: Lighting, Rain Gutters, Sidewalk, Sliding Doors
Flooring: Carpet, Ceramic Tile Foundation Details: Slab
Furnished: Unfurnished Heating: Electric
Laundry Features: Inside Levels: One
Listing Agreement: Exclusive Right To Sell Listing Terms: Cash, Conventional, FHA, VA Loan
Lot Features: Cul-De-Sac Occupant Type: Owner
Other Equipment: Irrigation Equipment Pets Allowed: Yes
Pool Features: Heated, In Ground, Lighting, Screen Enclosure Possession: Close Of Escrow
Property Sub Type: Single Family Residence Property Type: Residential
Road Surface Type: Asphalt Roof: Shingle
Sewer: Public Sewer Showing Requirements: Appointment Only
Spa Features: Heated, In Ground Special Listing Conditions: None
Standard Status: Active State Or Province: FL
Utilities: Sewer Connected View: Water
Water Source: Public Waterfront Features: Pond
Rooms Rooms
Kitchen: Family Room:
Dining Room: Primary Bedroom:
Primary Bedroom 2: Laundry:
Living Room:
We love to hear from you