
|
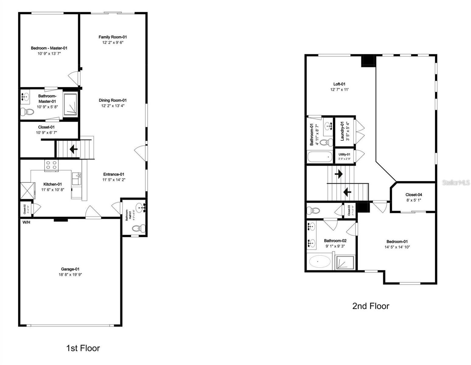
Bedrooms
2
|
Bathrooms
4
|
Living Area
2,074 Sqft
|
Lot Size
4,093 Sqft
|
| Property Features | Property Features | |||
|---|---|---|---|---|
| MLS ID: | MFRO6400684 | Year Built: | 2006 | |
| Appliances: | Dishwasher, Dryer, Electric Water Heater, Microwave, Range, Refrigerator, Trash Compactor, Washer | Association Amenities: | Fitness Center, Gated, Playground, Pool | |
| Association Fee Includes: | Guard - 24 Hour, Pool, Maintenance Grounds, Recreational Facilities | Community Features: | Community Mailbox, Deed Restrictions, Fitness Center, Gated Community - Guard, Playground, Pool, Sidewalks, Street Lights | |
| Construction Materials: | Block | Cooling: | Central Air | |
| Country: | US | County Or Parish: | Orange | |
| Direction Faces: | Northeast | Flooring: | Carpet, Ceramic Tile, Laminate | |
| Foundation Details: | Slab | Furnished: | Unfurnished | |
| Heating: | Central, Electric | Laundry Features: | Inside, Laundry Closet | |
| Levels: | Two | Listing Agreement: | Exclusive Right To Sell | |
| Listing Terms: | Cash, Conventional, FHA, VA Loan | Occupant Type: | Vacant | |
| Other Equipment: | Irrigation Equipment | Pets Allowed: | Yes | |
| Property Sub Type: | Townhouse | Property Type: | Residential | |
| Road Surface Type: | Asphalt | Roof: | Shingle | |
| Sewer: | Public Sewer | Showing Requirements: | ShowingTime | |
| Special Listing Conditions: | None | Standard Status: | Active | |
| State Or Province: | FL | Utilities: | Cable Available, Electricity Connected, Sewer Connected, Underground Utilities, Water Connected | |
| Water Source: | Public | |||
| Rooms | Rooms | |||
|---|---|---|---|---|
| Primary Bedroom: | 13x13 ft | Den: | 12x12 ft | |
| Bedroom 1: | 13x12 ft | Laundry: | ||
| Living Room: | Kitchen: | |||