
|
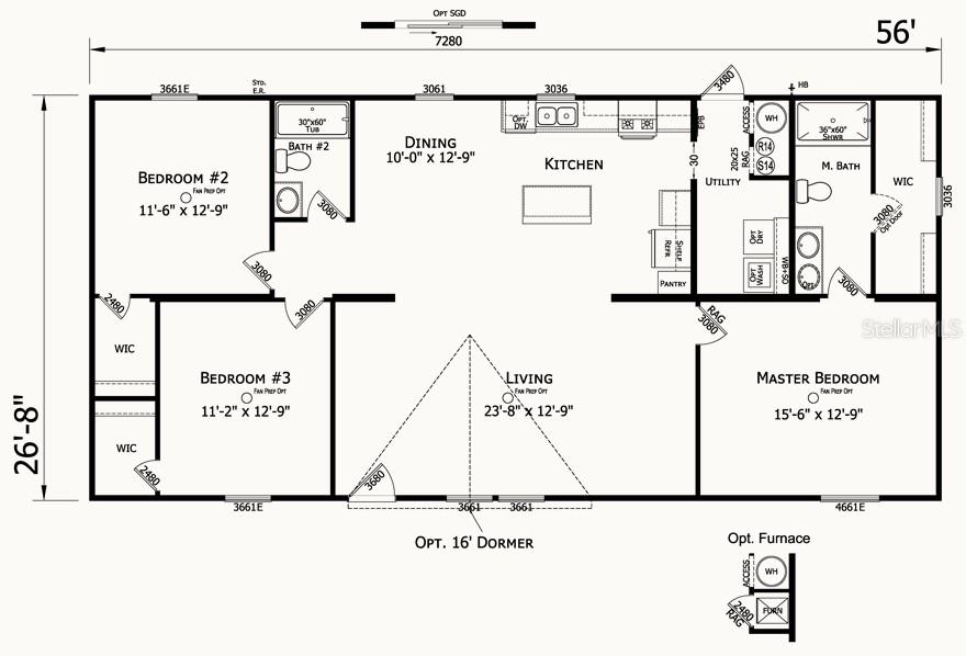
Bedrooms
3
|
Bathrooms
2
|
Living Area
1,494 Sqft
|
Lot Size
22,259 Sqft
|
| Property Features | Property Features | |||
|---|---|---|---|---|
| MLS ID: | MFRO6401382 | Year Built: | 2026 | |
| Appliances: | Dishwasher, Microwave, Range | Construction Materials: | Vinyl Siding, Frame | |
| Cooling: | Central Air | Country: | US | |
| County Or Parish: | Okeechobee | Direction Faces: | West | |
| Exterior Features: | None | Flooring: | Laminate | |
| Foundation Details: | Other | Furnished: | Unfurnished | |
| Heating: | Central | Laundry Features: | Electric Dryer Hookup, Washer Hookup | |
| Levels: | One | Listing Agreement: | Exclusive Agency | |
| Listing Terms: | Conventional, FHA, Other, Special Funding | Occupant Type: | Vacant | |
| Other Equipment: | None | Property Condition: | Pre-Construction | |
| Property Sub Type: | Modular Home | Property Type: | Residential | |
| Road Surface Type: | Dirt | Roof: | Shingle | |
| Sewer: | Septic Tank | Showing Requirements: | Go Direct, No Call Box, No Lockbox | |
| Special Listing Conditions: | None | Standard Status: | Active | |
| State Or Province: | FL | Utilities: | Cable Available, Electricity Available, Sewer Available, Water Available | |
| Water Source: | Well | |||
| Rooms | Rooms | |||
|---|---|---|---|---|
| Primary Bedroom: | 15x12 ft | Bedroom 2: | 11x12 ft | |
| Bedroom 3: | 11x12 ft | Living Room: | 23x12 ft | |
| Dining Room: | 10x12 ft | Kitchen: | 10x10 ft | |