
|
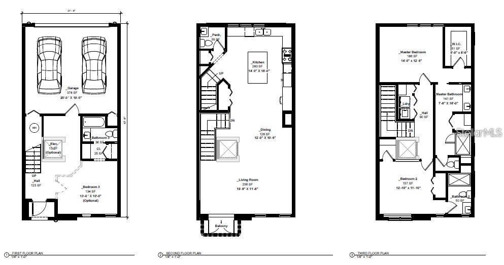
Bedrooms
3
|
Bathrooms
4
|
Living Area
2,131 Sqft
|
Lot Size
42,714 Sqft
|
| Property Features | Property Features | |||
|---|---|---|---|---|
| MLS ID: | MFRO6402125 | Year Built: | 2024 | |
| Appliances: | Built-In Oven, Cooktop, Dishwasher, Disposal, Dryer, Microwave, Range Hood, Refrigerator | Community Features: | Sidewalks | |
| Cooling: | Central Air | Country: | US | |
| County Or Parish: | Orange | Direction Faces: | South | |
| Exterior Features: | Balcony, Lighting, Sidewalk, Sliding Doors | Fencing: | Fenced | |
| Flooring: | Laminate, Tile | Furnished: | Unfurnished | |
| Heating: | Electric | Laundry Features: | Laundry Room | |
| Lease Term: | Twelve Months | Levels: | Three Or More | |
| Listing Agreement: | Exclusive Agency | Occupant Type: | Tenant | |
| Owner Pays: | Grounds Care, Taxes, Trash Collection, Water | Pets Allowed: | Yes | |
| Property Condition: | Completed | Property Sub Type: | Townhouse | |
| Property Type: | Residential Lease | Road Surface Type: | Asphalt | |
| Sewer: | Public Sewer | Showing Requirements: | Do Not Contact Tenants, Listing Agent Must Accompany | |
| Standard Status: | Active | State Or Province: | FL | |
| Utilities: | Public | Water Source: | Public | |
| Rooms | Rooms | |||
|---|---|---|---|---|
| Primary Bedroom: | 12x14 ft | Living Room: | 12x20 ft | |
| Kitchen: | 18x14 ft | |||