
|
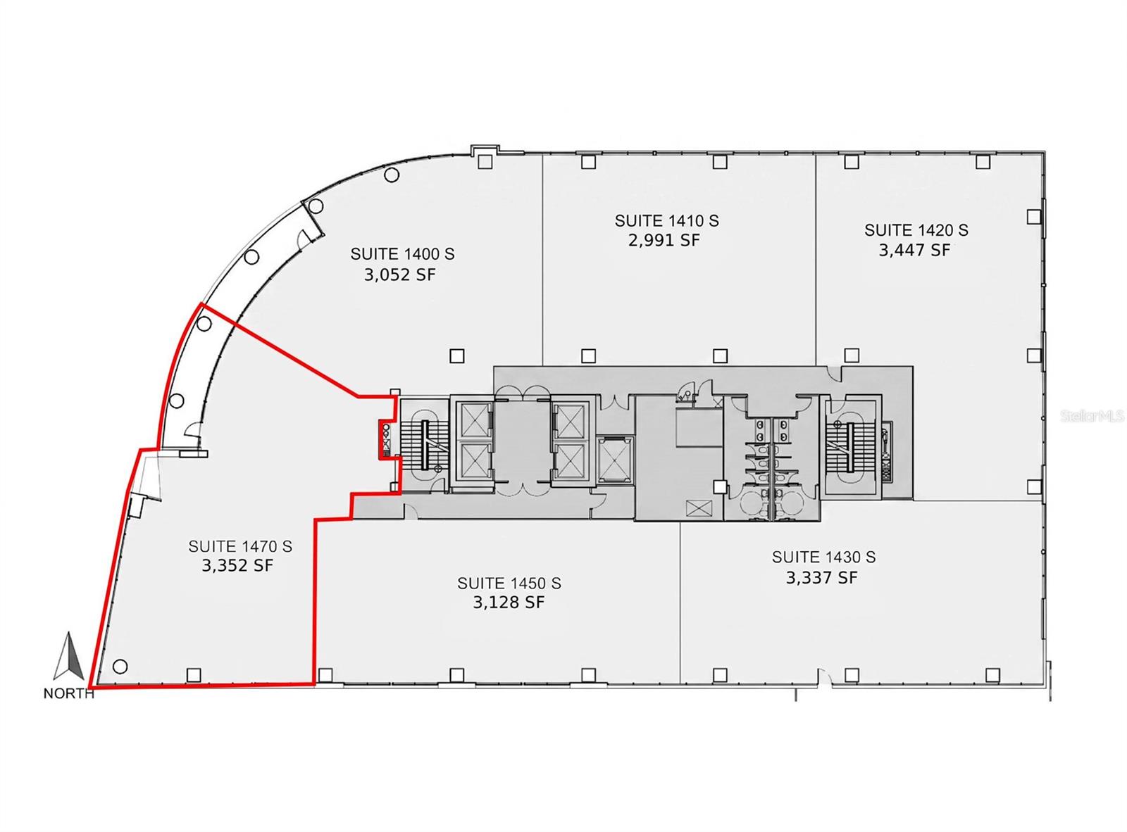
Living Area
3,352 Sqft
|
Lot Size
3,668 Sqft
|
| Property Features | Property Features | |||
|---|---|---|---|---|
| MLS ID: | MFRO6402788 | Year Built: | 2007 | |
| Construction Materials: | Stucco | Cooling: | Central Air | |
| Country: | US | County Or Parish: | Orange | |
| Foundation Details: | Slab | Listing Agreement: | Exclusive Right To Sell | |
| Listing Terms: | Cash | Property Sub Type: | Office | |
| Property Type: | Commercial Sale | Road Frontage Type: | Access Road | |
| Road Surface Type: | Asphalt, Paved | Showing Requirements: | See Remarks, ShowingTime | |
| Special Listing Conditions: | None | Standard Status: | Active | |
| State Or Province: | FL | |||