
|
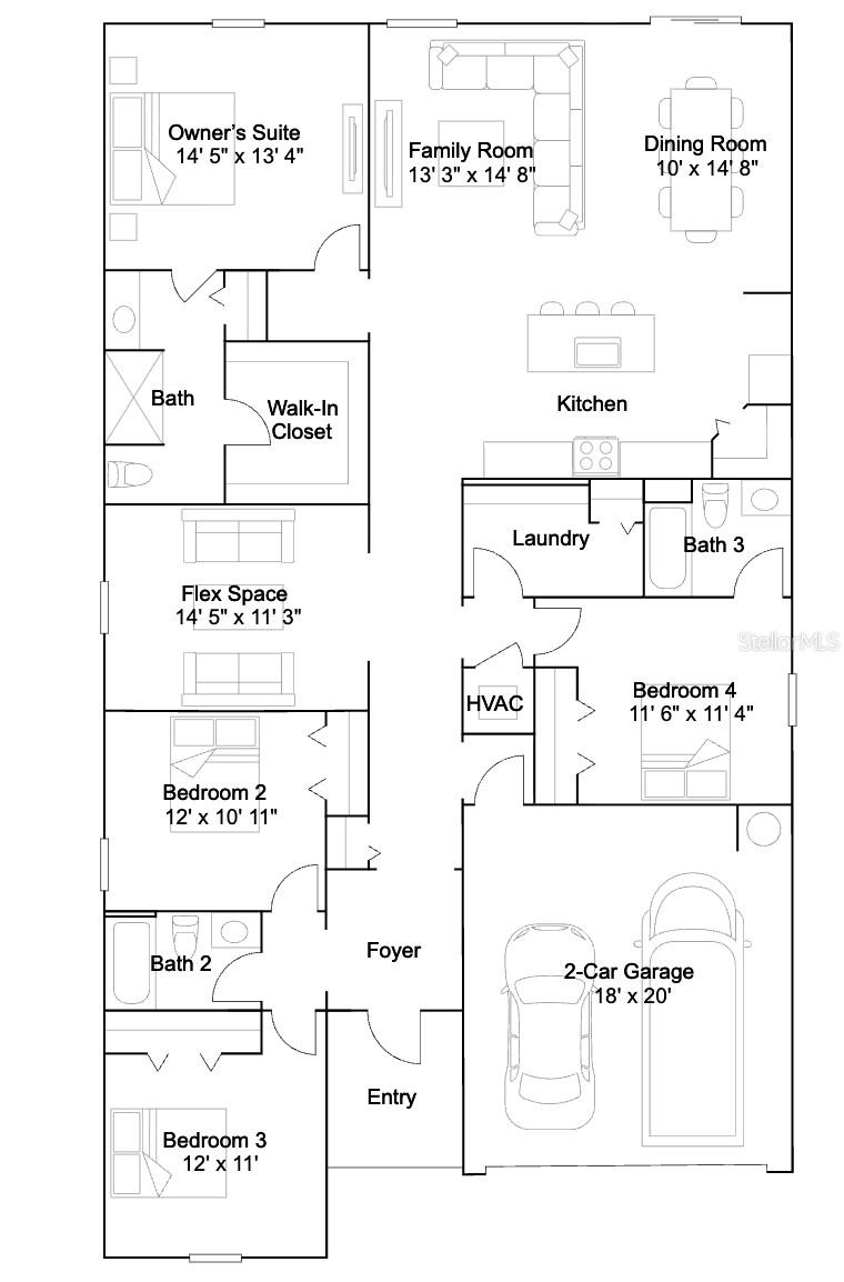
Bedrooms
4
|
Bathrooms
3
|
Living Area
2,172 Sqft
|
Lot Size
7,405 Sqft
|
| Property Features | Property Features | |||
|---|---|---|---|---|
| MLS ID: | MFRO6402836 | Year Built: | 2026 | |
| Appliances: | Dishwasher, Disposal | Construction Materials: | Block | |
| Cooling: | Central Air | Country: | US | |
| County Or Parish: | Marion | Direction Faces: | North | |
| Exterior Features: | Sliding Doors | Flooring: | Carpet, Luxury Vinyl | |
| Foundation Details: | Slab | Furnished: | Unfurnished | |
| Heating: | Heat Pump | Laundry Features: | Laundry Room | |
| Levels: | One | Listing Agreement: | Exclusive Right To Sell | |
| Occupant Type: | Vacant | Pets Allowed: | Yes | |
| Property Condition: | Under Construction | Property Sub Type: | Single Family Residence | |
| Property Type: | Residential | Road Surface Type: | Paved | |
| Roof: | Shingle | Sewer: | Public Sewer | |
| Showing Requirements: | See Remarks | Special Listing Conditions: | None | |
| Standard Status: | Active | State Or Province: | FL | |
| Utilities: | Public | Water Source: | Public | |
| Rooms | Rooms | |||
|---|---|---|---|---|
| Primary Bedroom: | Kitchen: | |||
| Living Room: | ||||