7556 SW 112TH LN, OCALA, FL, 34476
$214,999
Residential
Bedrooms
2
Bathrooms
2
Living Area
1,217 Sqft
Lot Size
11,761 Sqft
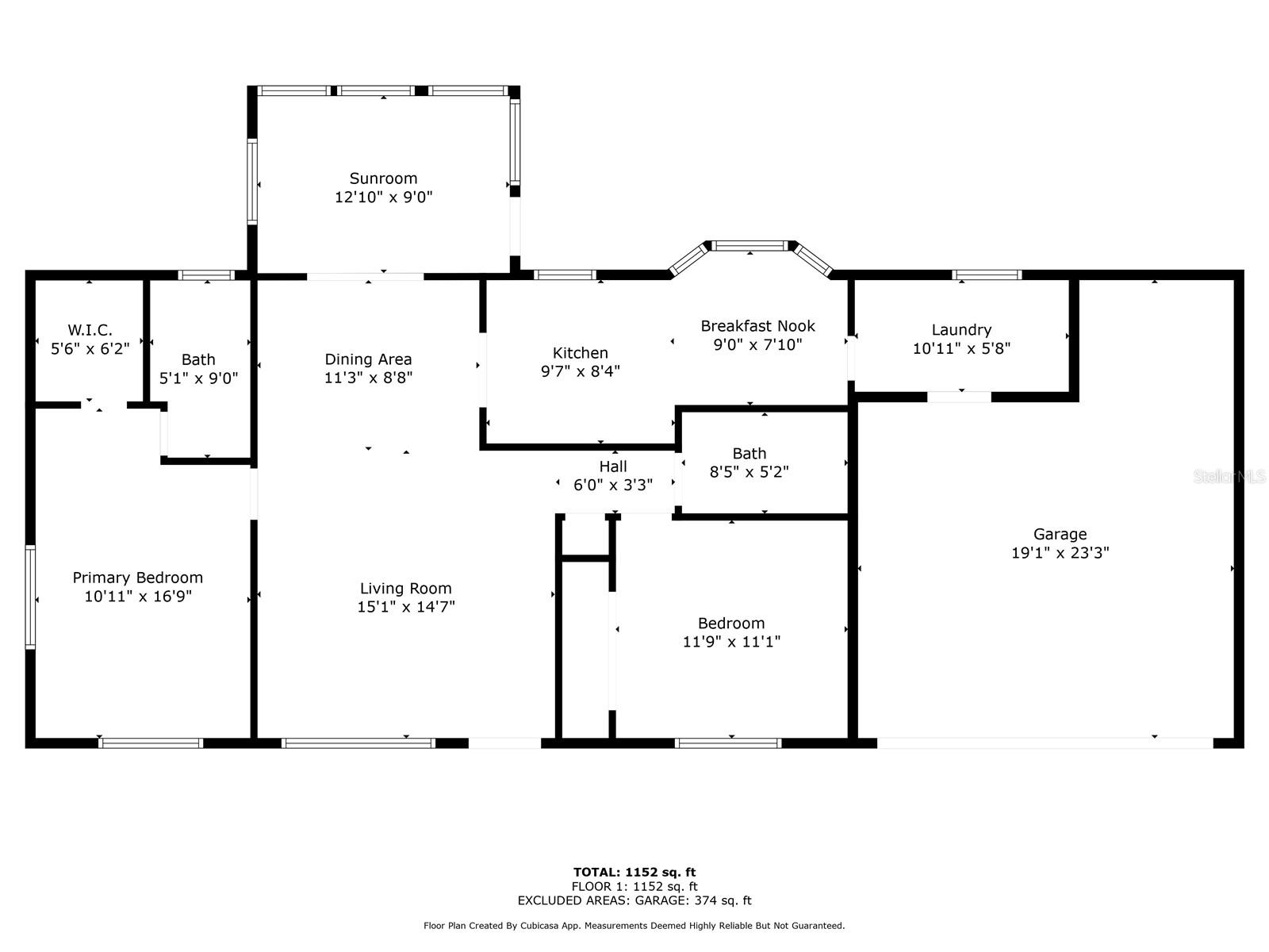
Welcome to this charming, newly renovated home in Palm Cay! Nestled at the back of the neighborhood, this 2 bedroom 2 full bath home provides comfort and style with its cool color scheme! Create culinary masterpieces in the stylish kitchen with quartz countertops and subway tile backsplash, and brand new stainless steel appliances! Take your meals in the cozy nook in the kitchen looking out the bay windows or the open plan dining room! Relax in the enclosed sunroom with a peaceful view. Primary bedroom has large walk in closet and attached en suite with new walk in shower! True split plan with guest bedroom and bath on other side of house separated by large living room with lots of natural light! Roof replaced Dec 2024, HVAC Jan 2025, new flooring Jan 2025, new counters, cabinets and appliances Jan 2025. This is such a pretty home, don't hesitate to schedule your showing!
Property Details
Property Features Property Features
MLS ID: MFROM693856 Year Built: 1992
Appliances: Dishwasher, Electric Water Heater, Microwave, Range, Refrigerator Community Features: Clubhouse, Pool
Construction Materials: Vinyl Siding, Frame Cooling: Central Air
Country: US County Or Parish: Marion
Direction Faces: North Exterior Features: Sidewalk
Flooring: Luxury Vinyl Foundation Details: Slab
Heating: Central, Electric, Heat Pump Laundry Features: Laundry Room
Levels: One Listing Agreement: Exclusive Right To Sell
Listing Terms: Cash, Conventional Occupant Type: Vacant
Pets Allowed: Yes Property Sub Type: Single Family Residence
Property Type: Residential Road Surface Type: Paved
Roof: Shingle Sewer: Septic Tank
Showing Requirements: Lock Box Coded, ShowingTime Special Listing Conditions: None
Standard Status: Active State Or Province: FL
Utilities: Electricity Connected, Water Connected Water Source: Public
Rooms Rooms
Kitchen: 9x8 ft Living Room: 15x14 ft
Primary Bedroom: 10x16 ft Primary Bathroom: 5x9 ft
We love to hear from you